| ID # | RLS20079190 |
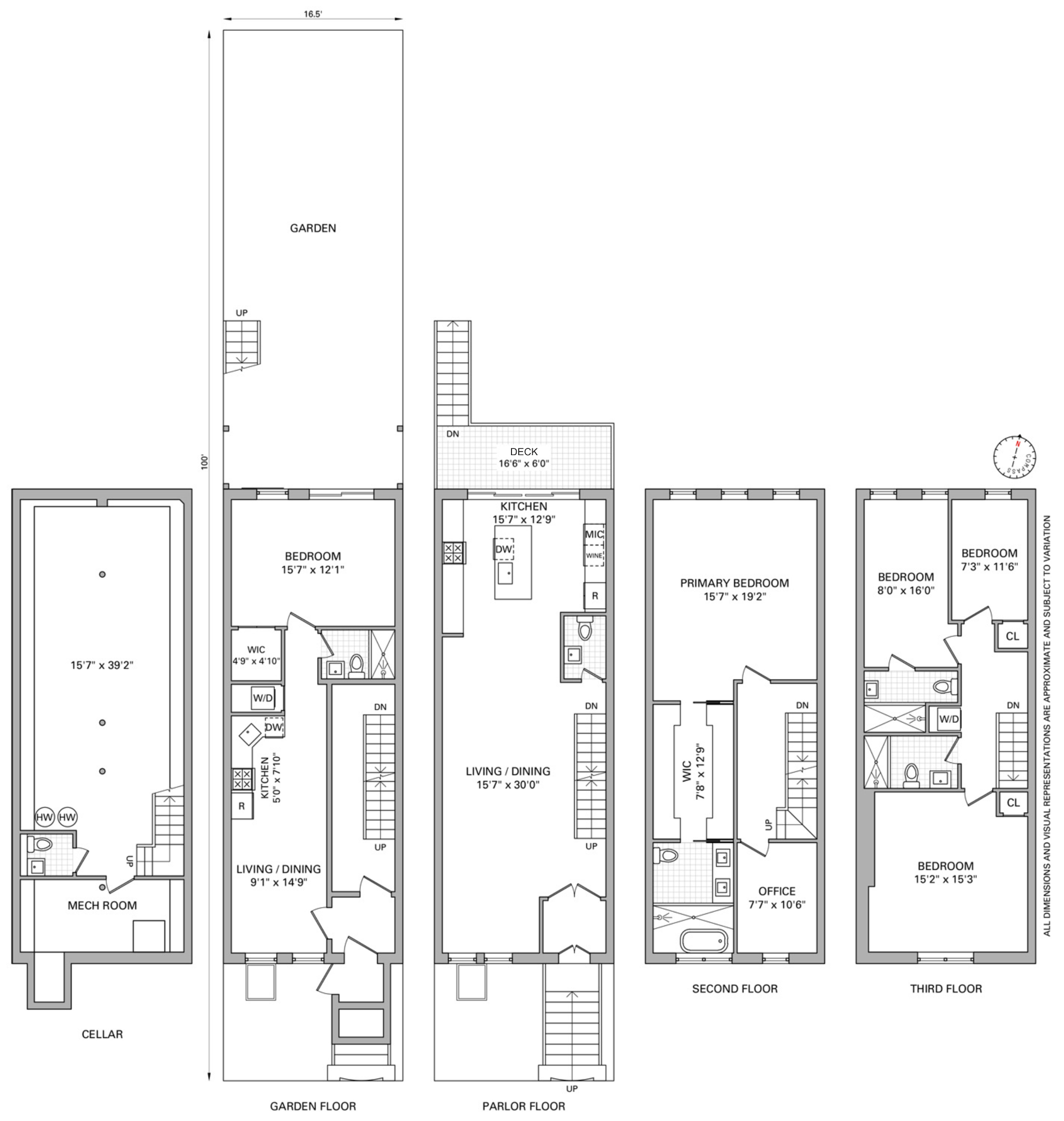
| Özellikler | 5 yatak odası, 4 banyo, 2 yarım banyo, bulaşık makinesi, Çamaşır makinesi, Çamaşır kurutma makinesi, iç mekan: 3693 ft2, 343m2, Binada 2 ünite var, 4 katlı bina |
| İnşaat yılı | 1915 |
| Yıllık vergiler | $4,020 |
| Otobüs | 1 dakika: B15 |
| 2 dakika: B38 | |
| 3 dakika: B52 | |
| 5 dakika: B46 | |
| 7 dakika: B43, B47 | |
| 8 dakika: Q24 | |
| 9 dakika: B54 | |
| 10 dakika: B26 | |
| Subway | 8 min: J |
| 9 min: M, Z | |
| Tren (LIRR) | 1.1 mil: "Nostrand Avenue" |
| 2 mil: "East New York" | |
![]() |
Bu zarif bir şekilde yeniden tasarlanmış 1915 yılından kalma townhouse'a hoş geldiniz - klasik mimarinin ince modern yaşamla kusursuz bir şekilde birleştiği tamamen yenilenmiş iki ailelik bir konut. Baştan aşağı düşünülerek yeniden tasarlanan bu ev, ofis ve bitirilmiş mahzeni ile birlikte, aile, misafir veya kiralık gelir için ideal bir şekilde yenilenmiş bir yatak odalı bahçe dairesi sunan sahibine ait dört odalı triplex daire sunuyor.
Her detay incelikle hazırlanmış, şık beyaz meşe zeminlerden restore edilmiş mimari unsurlara, modern kaplama ve sistemlere kadar her şey düşünülmüştür. Mermer tezgahlar, özel marangozluk işleri ve üst düzey alet paketi, evin tasarımını ve işlevselliğini artırmaktadır.
Sahibinin triplex'i, günlük yaşam ve eğlence için tasarlanmış geniş bir oturma katına açılmaktadır. Büyük pencereler, mekanın doğal ışıkla dolmasını sağlarken, resmi oturma alanı zarif bir yemek alanına sorunsuz bir şekilde akmaktadır ve bunun yanında gizli bir tuvalet bulunmaktadır.
Arka planda, şef mutfağı hem göz alıcı hem de son derece işlevseldir; mermer tezgahlar, özel dolaplar ve Thermador buzdolabı, bulaşık makinesi, Bosch elektrikli ocak, Sharp mikrodalga fırın ve Summit şarap soğutucusu da dahil olmak üzere yüksek kaliteli alet setiyle donatılmıştır - sosyal etkinlikler ve toplanmalar için mükemmel bir alan.
Üst katlarda dört iyi büyüklükte yatak odası ve üç tam banyo bulunmaktadır. Huzurlu ana süit, bol kıyafet alanı ve bir spa benzeri ebeveyn banyosu sunarken, ek yatak odaları ferah, aydınlık ve özenle tasarlanmıştır. Tam boy LG çamaşır makinesi ve kurutma makinesi günlük konforu sağlamaktadır.
Sahibin dairesinden içten erişimle ulaşılan bitirilmiş mahzen, medya odası, ev gym'i, ofis veya oyun odası için ideal esnek ek alan sunmakta olup, ilave bir yarım banyo da içermektedir.
Bahçe katındaki bir yatak odalı daire tamamen yenilenmiş ve zarif bir şekilde döşenmiştir, özel girişi, modern mutfağı, suite çamaşırı ve tam banyosu ile birlikte – kiralık, misafir süiti veya kayınvalidenin dairesi için mükemmel bir seçenek.
Stuyvesant Heights'in kalbinde, göz alıcı bir blokta mükemmel bir konumda bulunan bu ev, Saraghina, Peaches, Trad Room ve Laziza gibi mahalle favorilerine ve çocuk oyun alanları, basketbol sahaları ve tenis kortları bulunan parklara çok yakındır. Utica Avenue'daki A/C trenleriyle ulaşım son derece kolaydır ve JFK Havalimanı sadece 30 dakikalık bir sürüş mesafesindedir.
Modern yaşam için yeniden doğmuş gerçek bir Brooklyn klasiği.
Welcome to this beautifully reimagined 1915 townhouse—a fully gut-renovated two-family residence that seamlessly blends classic architecture with refined modern living. Thoughtfully redesigned from top to bottom, the home offers an owner’s four-bedroom triplex with an office and finished cellar, along with a fully renovated one-bedroom garden apartment ideal for family, guests, or rental income.
Every detail has been carefully curated, from elegant white oak flooring and restored architectural elements to contemporary finishes and modern systems throughout. Marble countertops, custom millwork, and a premium appliance package elevate the home’s design and functionality.
The owner’s triplex opens into an expansive parlor level designed for both everyday living and entertaining. Oversized windows fill the space with natural light, while the formal living area flows seamlessly into a generous dining space, complemented by a discreet powder room.
At the rear, the chef’s kitchen is both striking and highly functional, featuring marble countertops, custom cabinetry, and a high-end appliance suite including a Thermador refrigerator and dishwasher, a Bosch electric range, a Sharp microwave, and a Summit wine cooler—perfect for hosting and gathering.
The upper floors house four well-proportioned bedrooms and three full bathrooms. The serene primary suite offers generous closet space and a spa-like en-suite bath, while the additional bedrooms are bright, spacious, and thoughtfully laid out. A full-sized LG washer and dryer add everyday convenience.
The finished cellar, accessed internally from the owner’s unit, provides flexible bonus space ideal for a media room, home gym, office, or playroom, along with an additional half bath.
The garden-level one-bedroom apartment is fully renovated and beautifully appointed, offering a private entrance, modern kitchen, in-suite laundry, and full bathroom—perfect as a rental, guest suite, or in-law apartment.
Perfectly positioned on a picturesque block in the heart of Stuyvesant Heights, the home is moments from neighborhood favorites like Saraghina, Peaches, Trad Room, and Laziza, as well as nearby parks with playgrounds, basketball courts, and tennis courts. Commuting is effortless with the A/C trains at Utica Avenue, and JFK Airport is just a convenient 30-minute drive away.
A true Brooklyn classic—reborn for modern living.
This information is not verified for authenticity or accuracy and is not guaranteed and may not reflect all real estate activity in the market. © 2026 The Real Estate Board of New York, Inc., All rights reserved.






