| ID # | RLS20074044 |
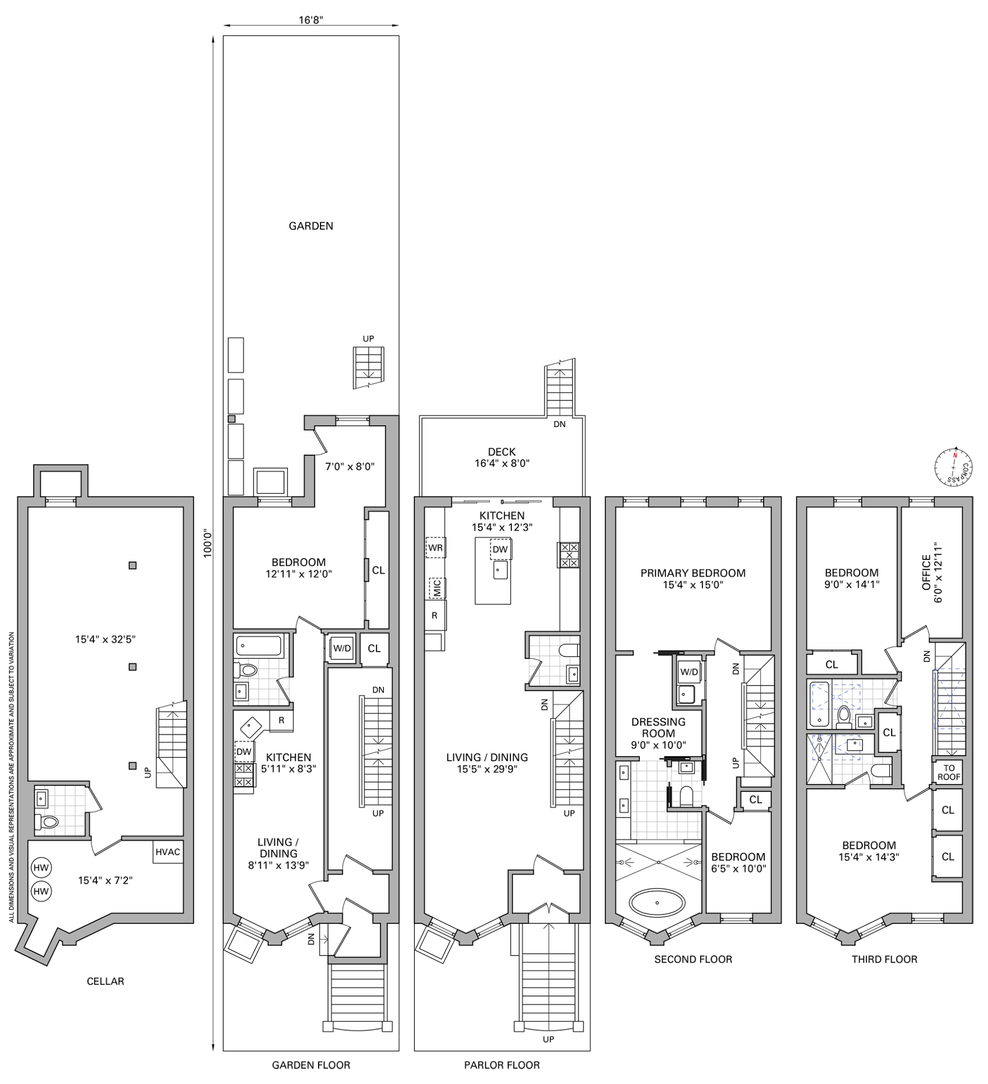
| Özellikler | 5 yatak odası, 4 banyo, 2 yarım banyo, bulaşık makinesi, Çamaşır makinesi, Çamaşır kurutma makinesi, iç mekan: 3430 ft2, 319m2, Binada 2 ünite var, 4 katlı bina |
| İnşaat yılı | 1899 |
| Yıllık vergiler | $5,160 |
| Otobüs | 1 dakika: B26 |
| 2 dakika: B15 | |
| 4 dakika: B46 | |
| 6 dakika: B25, B52 | |
| 8 dakika: B43 | |
| Subway | 7 min: A, C |
| Tren (LIRR) | 0.9 mil: "Nostrand Avenue" |
| 1.7 mil: "East New York" | |
![]() |
485 Halsey Street'e hoş geldiniz, 1899'dan kalma titizlikle yenilenmiş bir townhouse, zamansız mimari karakteri modern yaşamla mükemmel bir şekilde harmanlıyor. Bu iki ailelik kahverengi taş binada 5 yatak odası, 1 ev ofisi, 4 tam banyo, 2 tuvalet, geniş bir oturma alanı ve ferah bir arka bahçe bulunuyor. Bu evin her bir köşesi, zengin tarihini korurken şık detaylar ve en son teknoloji ile sunduğu yüksek kaliteli bitişlerle, dikkat çekici bir işçilik sergiliyor.
Sahibinin dairesine girdiğiniz andan itibaren, klasik Brooklyn townhouse'larını tanımlayan bir ölçek ve sıcaklık hissi ile karşılanıyorsunuz. Orijinal detaylar evin tarihi köklerine selam duruyor, modern bitişler ve sistemler günlük yaşamı yükseltiyor. Geniş plank beyaz meşe zeminler, açık tuğla ve özel imalat ahşap işleri, hem şık hem de davetkar bir estetik yaratıyor.
Evin kalbi, hem eğlence hem de günlük kullanım için tasarlanmış şef mutfağıdır. Entegre Fisher & Paykel buzdolabı ve bulaşık makinesi, Wolf ocak, Sharp mikrodalga, ve Frigidaire şarap soğutucusu gibi yüksek kaliteli aletlerle donatılmış olan mutfak, hem işlevsel hem de dikkat çekicidir. Temiz hatlara sahip dolaplar ve bol hazırlık alanı, misafir ağırlamak için ideal kılarken, evin arka tarafına kesintisiz geçiş, iç-dış mekan deneyimini geliştiriyor.
Üst kat, mahremiyet ve konforu maksimize etmek için düşünüldü. Yatak odaları iyi orantılı ve doğal ışıkla dolu, spa benzeri banyolar ise zarif bitişler ve sakin tonlarla donatılmış. Electrolux çamaşır makinesi ve havalandırmalı kurutucuyla donatılmış bir çamaşır alanı, estetikten ödün vermeden günlük pratiklik sağlıyor.
Bahçe katı geniş yatak odası, banyo ve çamaşır alanıyla esneklik sunuyor - uzatmalı yaşam, misafir konaklamaları veya gelir potansiyeli için mükemmel - bu evi hem pratik hem de güzel kılıyor.
Stuyvesant Heights'te, ağaçlarla çevrili güzel bir sokakta yer alan 485 Halsey, Saraghina, Peaches, Trad Room ve Laziza gibi sevilen mahalle mekanlarına sadece birkaç adım mesafede, ayrıca yeşil alan ve rekreasyon sunan birçok park da bulunmaktadır. Ulaşım, Utica Avenue A/C İstasyonu’na birkaç adım mesafede olurken, JFK Havalimanı'na da kolay erişim sağlıyor.
485 Halsey Street, tarihi geçmişine saygı gösterirken, günümüz alıcılarının beklediği konfor, stil ve işlevselliği sunan yeniden tasarlanmış bir townhouse'a sahip olma fırsatıdır.
Welcome to 485 Halsey Street, a meticulously renovated 1899 townhouse that seamlessly blends timeless architectural character with refined modern living. This two-family brownstone boasts 5 bedrooms, 1 home office, 4 full bathrooms, 2 powder rooms, a spacious parlor deck, and a sprawling backyard garden. Every inch of this home exudes attention to detail, from the original doors to the exposed brick that preserves the home’s rich history while offering high-end finishes and cutting-edge technology.
From the moment you enter the owner’s residence, you are greeted by a sense of scale and warmth that defines classic Brooklyn townhouses. Original details nod to the home’s historic roots, while contemporary finishes and systems elevate everyday living. Wide-plank white oak floors, exposed brick, and custom millwork create a cohesive aesthetic that feels both elevated and inviting.
The heart of the home is the chef’s kitchen, designed for both entertaining and daily use. Outfitted with premium appliances—including an integrated Fisher & Paykel refrigerator and dishwasher, Wolf range, Sharp microwave, and Frigidaire wine cooler—the kitchen is as functional as it is striking. Clean-lined cabinetry and generous prep space make it ideal for hosting, while the seamless flow to the rear of the home enhances the indoor-outdoor experience.
Upstairs, the sleeping quarters are thoughtfully laid out to maximize privacy and comfort. Bedrooms are well-proportioned and filled with natural light, while spa-like bathrooms feature refined finishes and calming tones. A dedicated laundry setup with Electrolux washer and vented dryer adds everyday convenience without compromising aesthetics.
The garden level with its spacious bedroom, bathroom, and W/D provides flexibility—perfect for extended living, guest accommodations, or income potential—making this home as practical as it is beautiful.
Set on a picturesque, tree-lined block in Stuyvesant Heights, 485 Halsey is moments from beloved neighborhood destinations, including Saraghina, Peaches, Trad Room, and Laziza, along with multiple nearby parks offering green space and recreation. Transportation is effortless with the Utica Avenue A/C Station just moments away, and convenient access to JFK Airport.
485 Halsey Street is a rare opportunity to own a reimagined townhouse that honors its historic past while delivering the comfort, style, and functionality today’s buyers expect.
This information is not verified for authenticity or accuracy and is not guaranteed and may not reflect all real estate activity in the market. © 2026 The Real Estate Board of New York, Inc., All rights reserved.







