| ID # | 950805 |
| İnşaat yılı | 1931 |
| Yıllık vergiler | $80,981 |
| Bodrum kat | Tam Bodrum |
| Otobüs | 0 dakika: B52 |
| 1 dakika: B44 | |
| 4 dakika: B26, B44+ | |
| 5 dakika: B38 | |
| 6 dakika: B48 | |
| 7 dakika: B43 | |
| 8 dakika: B25, B49 | |
| Subway | 5 min: G |
| 8 min: A, C | |
| 10 min: S | |
| Tren (LIRR) | 0.6 mil: "Nostrand Avenue" |
| 1.3 mil: "Atlantic Terminal" | |
![]() |
Lütfen tüm gelir ve gider detaylarıyla birlikte kurulum belgelerini kontrol edin.
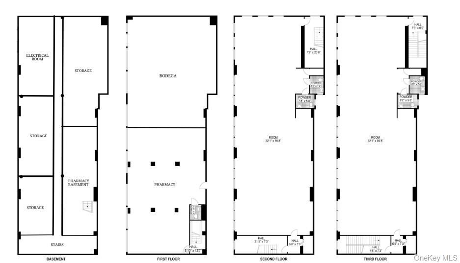
Bedford-Stuyvesant'taki birinci sınıf köşede tamamen yenilenmiş ve karma kullanım için tasarlanmış bir mülk. Mülk, S, C, A G trenlerine, ayrıca Brooklyn MTA otobüsü 38, 44, 48 ve 52 hatlarına yakın bir konumdadır. Üst katlar, 15 metreden fazla tavan yüksekliği, büyük pencereler, yepyeni ısıtma ve soğutma sistemleri ve yeterli tuvaletler ile mükemmel Class A ofis alanıdır.
405-407 Gates Ave, Brooklyn 11216 (403 Gates ave boş arazi 18.75*100 R6A, C2-4)
R6A, C2-4 imar
Bina için $7,500,000. Arazi için $1,500,000. Birlikte satılacak veya önce bina
Kare Ayak Başına Fiyat: $667
Yıl: 1931
SF: 11,250
Arazi SF: 3,750
Please check the documents for the set up with all income and expense details.
Fully renovated and mixed use asset on a prime corner in Bedford-Stuyvesant. The property is in close proximity to the S, C, A G trains, along with Brooklyn MTA bus 38, 44, 48 and 52 lines. The top floors are supreme Class A office space, with 15+ foot ceilings, oversized windows, brand new heating and cooling systems and ample lavatories.
405-407 Gates Ave, Brooklyn 11216 (403 Gates ave vacant lot 18.75*100 R6A, C2-4 )
R6A, C2-4 zoning
$7,500,000 for building. $1,500,000 for the lot. Will sell together or bldg first
Price Per Square Foot: $667
Year built: 1931
SF: 11,250
Lot SF: 3,750 © 2025 OneKey™ MLS, LLC







