| ID # | RLS20066395 |
| Özellikler | 5 yatak odası, 4 banyo, 1 yarım banyo, Çamaşır makinesi, Çamaşır kurutma makinesi, iç mekan: 3000 ft2, 279m2, Binada 2 ünite var, 4 katlı bina |
| İnşaat yılı | 1834 |
| Otobüs | 1 dakika: B25 |
| 5 dakika: B67, B69 | |
| 6 dakika: B26, B38, B52 | |
| 7 dakika: B103, B41 | |
| 9 dakika: B54, B57, B62 | |
| Subway | 3 min: A, C |
| 4 min: 2, 3 | |
| 6 min: F | |
| 9 min: R | |
| Tren (LIRR) | 1.5 mil: "Atlantic Terminal" |
| 2.8 mil: "Nostrand Avenue" | |
![]() |
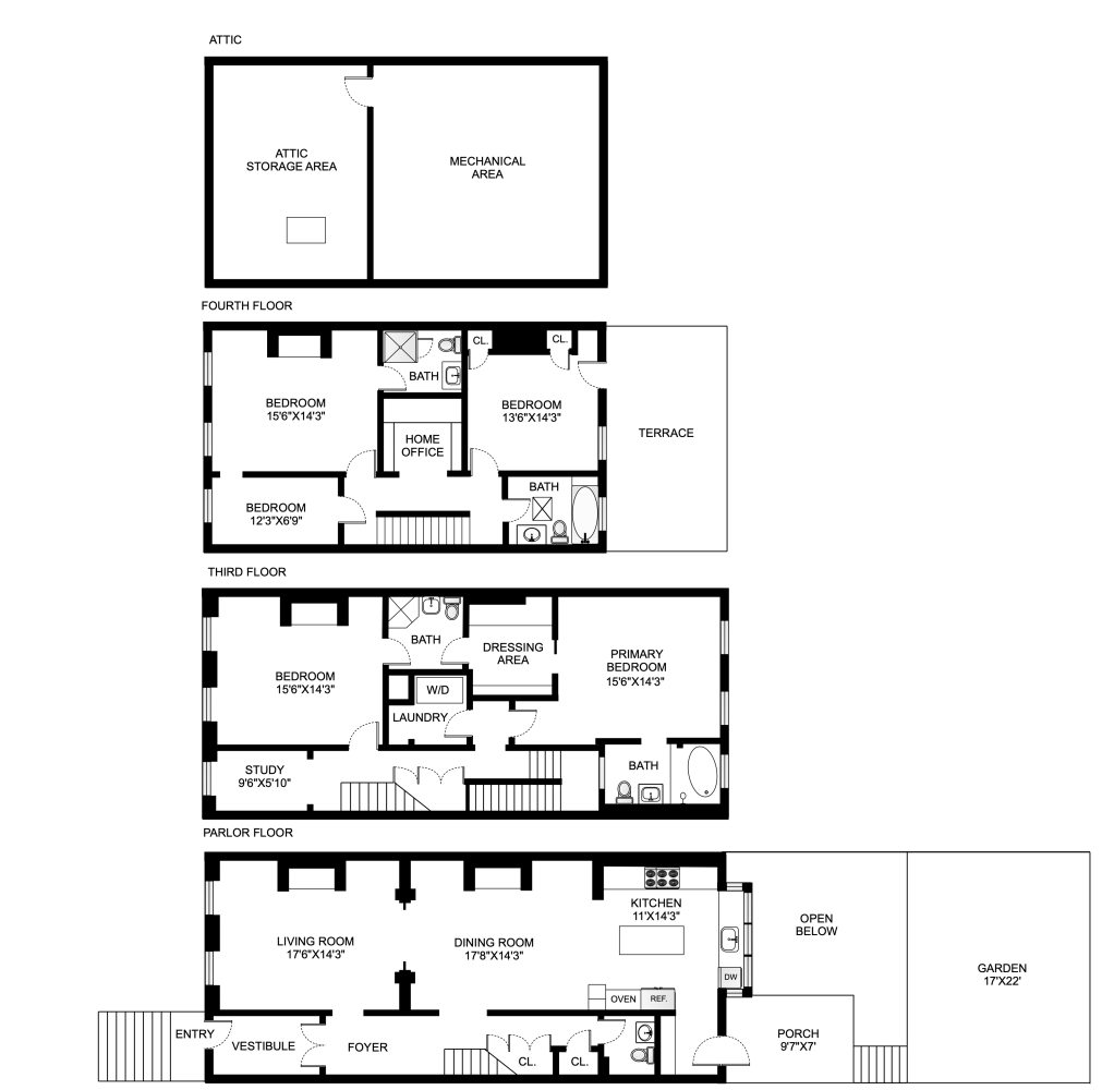
Brooklyn Heights'te Kiralık, Kusursuz Tasarlanmış, Restorasyonlu Triplex Maisonette
Bu titizlikle restore edilmiş 5 yatak odalı, 4.5 banyo bulunan triplex maisonette, Brooklyn Heights'teki 57 Middagh Caddesi'nde, Manhattan'a sadece birkaç adım mesafede, seçkin bir yaşam deneyimi sunmaktadır. Bu olağanüstü ev, tarihi mimari detayları modern lüksle birleştiriyor.
Salon katında, süslü orijinal teneke detaylarıyla yüksek tavanlar, bir odun yakan şömine ve Thermador ve Miele cihazlarıyla donatılmış özel bir şef mutfağı bulunmaktadır. Üçlü büyük pencereler, alanı doğal ışıkla doldurarak arka terasa ve peyzajlı bahçeye manzaralar sunmaktadır. Geniş depolama alanı ve uygun bir konumda yer alan tuvalet, salon katını tamamlamaktadır.
Tamamen ikinci kat, iki özel banyolu, geniş bir giyinme odası, odun yakan bir şömineye sahip özel bir oturma odası, okuma köşesi olan açık bir çalışma alanı ve geniş bir çamaşır odası sunan geniş ana suite'e ayrılmıştır.
Üst kat, evin mimari zarafetini orijinal teneke tavanlar ve üç ek yatak odasında ve iki tam banyoda boydan boya pencereler ile sürdürmektedir. Arka yatak odası, Brooklyn Köprüsü ve DUMBO manzaralarına sahip, tam genişlikte özel terasa doğrudan erişim sağlar. Bu kat, uzaktan çalışma için ideal olan, iç mekan ofisi ile desteklenmektedir.
Ek özellikler arasında, birim boyunca çok bölgesel HVAC ve tüm banyolarda radyant ısıtma bulunmaktadır.
Brooklyn Heights'ın en çok arzu edilen, sessiz bloklarından birinde mükemmel bir konumda yer alan bu townhouse, Brooklyn Heights Promenade, Brooklyn Köprüsü Parkı, DUMBO, mahalle bistroları ve günlük olanakların yalnızca birkaç adım ötesindedir. A/C metro hatları yalnızca 1.5 blok uzaklıkta olup, Manhattan ve Fort Greene'e zahmetsiz bir erişim sunmaktadır. Yakındaki bir yol ve yaya köprüsü, doğrudan Brooklyn Köprüsü Parkı'na ve Middagh Caddesi'nin sonunda yer alan yeni derin su marinasına yönlendirmektedir.
Ödüllü R.A. Somerby ekibi tarafından tasarlanan, inşa edilen ve dekore edilen bu konut, gerçekten olağanüstü bir Brooklyn Heights townhouse'u kiralama fırsatını temsil etmektedir.
Öncelikli maliyetler: Her başvuru sahibi için 20 $ kiralama başvuru ücreti. Kira sözleşmesi imzalandığında: ilk ayın kirası ve bir aylık güvenlik teminatı.
Impeccably Designed, Restored Townhouse Triplex for Rent in Brooklyn Heights
Experience refined townhouse living in this meticulously restored 5-bedroom, 4.5-bathroom triplex located at 57 Middagh Street in prime Brooklyn Heights. This exceptional home combines historic architectural detail with modern luxury, just moments from Manhattan.
The parlor level features soaring ceilings with ornate original tin detailing, a wood-burning fireplace, and a custom chef's kitchen outfitted with Thermador and Miele appliances and bespoke cabinetry. Triple oversized windows flood the space with natural light and frame views of the back deck and landscaped garden. Ample storage and a conveniently located powder room complete the parlor floor.
The entire second floor is dedicated to the expansive primary suite, offering two en-suite bathrooms, a generous dressing room, a private sitting room with a wood-burning fireplace, an open study with reading nook, and a spacious laundry room.
The top floor continues the home's architectural elegance with original tin ceilings and oversized windows throughout three additional bedrooms and two full bathrooms. The rear bedroom provides direct access to a full-width private terrace with stunning views of the Brooklyn Bridge and DUMBO. An internal home office anchors this level, ideal for remote work.
Additional features include multi-zone HVAC throughout the unit and radiant heat in all bathrooms.
Perfectly positioned on one of Brooklyn Heights' most coveted, quiet blocks, this townhouse is just steps from the Brooklyn Heights Promenade, Brooklyn Bridge Park, DUMBO, neighborhood bistros, and everyday amenities. The A/C subway lines are only 1.5 blocks away, offering effortless access to Manhattan and Fort Greene. A nearby pathway and footbridge lead directly to Brooklyn Bridge Park and the new deep-water marina at the end of Middagh Street.
Designed, built, and decorated by the award-winning team at R.A. Somerby, this residence represents a rare opportunity to rent a truly exceptional Brooklyn Heights townhouse.
Upfront costs: $20 rental application fee per applicant. At lease signing: first month's rent and one-month security deposit.
This information is not verified for authenticity or accuracy and is not guaranteed and may not reflect all real estate activity in the market. ©2025 The Real Estate Board of New York, Inc., All rights reserved.






