| ID # | RLS20079817 |
| Özellikler | 2 yatak odası, 2 banyo, iç mekan: 1773 ft2, 165m2, Binada 103 ünite var, 32 katlı bina |
| İnşaat yılı | 1923 |
| Bakım ücretleri | $3,789 |
| Otobüs | 1 dakika: B25, B26, B38, B41, B45, B52, B57 |
| 2 dakika: B103 | |
| 3 dakika: B61, B62, B63, B65 | |
| 5 dakika: B67 | |
| 6 dakika: B54 | |
| Subway | 2 min: 4, 5 |
| 3 min: 2, 3, R | |
| 5 min: A, C, F | |
| 8 min: G | |
| Tren (LIRR) | 1 mil: "Atlantic Terminal" |
| 2.5 mil: "Nostrand Avenue" | |
![]() |
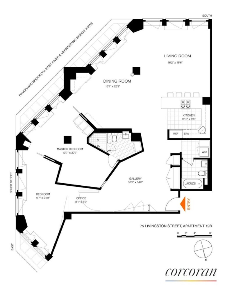
Brooklyn Heights'ın üzerinde yükselen, 75 Livingston Street'te yer alan 19B Daire, mahallenin önde gelen tam hizmetli kooperatif binalarından birinde güneş ışığıyla dolu, loft tarzı bir konut sunmaktadır. Bu geniş ev, Güney, Batı ve Doğu'dan gelen üç açılıdan kesintisiz ve geniş manzaralar sunarak Brooklyn ve New York Limanı'na kadar nefes kesen panoramalara sahip.
Yaklaşık 1,773 fit kare alan kaplayan esnek düzen, şu anda iki büyük yatak odası ve iki tam banyo ile geniş bir şekilde tasarlanmış olup, en az üç yatak odasına dönüştürülebilir (onaylarla). 40+ feetlik dramatik bir yaşam ve yemek alanı ve entegre masa, eğlence, dinlenme veya evden çalışma için olağanüstü bir ortam yaratıyor - hepsi, 14 adet büyük, çift cam, tilt ve dönme pencereden gelen olağanüstü doğal ışıkla aydınlanıyor ve özel elektrikli Levolor perdeleri ile kaplanmış.
Bu ev ayrıca 9' tavanlar, yepyeni meşe zeminler ve her yerde özel yapılmış donanımlar ile zenginleştirilerek hem sıcaklık hem de işlevsellik sunmaktadır. Büyük bir giriş holü, hoş bir karşılama sağlar ve çok sayıda çekyat, medya/oyun alanı ve/veya ikinci bir ev ofisi için ek bir uyku alanı yaratma fırsatı sunar. Yeni yenilenmiş bir misafir banyosuna, içinde bir küvet ve yeni Miele yıkanabilir/sebze yıkama makinesi olan bir çamaşır odasına, ek kiler depolama alanı ile bitişiktir.
Açık mutfak, 2026 yılında şık Charleston Gray finisajında özel düz panelli dolaplarla akıllıca yenilenmiş olup, beyaz Calacatta desenli kuvars tezgahlar ve parlak artisan seramik karolarla tamamlanmıştır. Dört kişilik oturma alanı ile geniş tezgah alanı, tamamen paslanmaz çelik cihazlar ile birlikte (yeni bir Frigidaire gazlı ocak, yeni bir Miele bulaşık makinesi, yeni bir GE mikrodalga ve bir LG buzdolabı dahil) mutfağı hem işlevsel hem de şık hale getirir.
Birincil süit, üç büyük pencereden sürekli açık manzaraların keyfini çıkarmakta ve entegre bir gardırop ve raflarla birlikte bir banyo sunmaktadır. Sakin bir dinlenme alanı olarak tasarlanmış olup, parlak porselen karolar, fırçalanmış nikel Kohler Purist armatürleri, yeni bir dalgalı vanite, seramik lavabo, modern bir ilaç dolabı ve cömert depolama alanı gibi ince ayrıntıları sergilemektedir.
İkinci yatak odası, hol çıkışından büyük bir salıncak kapıyla girilmektedir ve birincil yatak odasından da erişilebilir. Parlak, geniş ve sessiz olan bu alan, çeşitli kullanımlar için esneklik sunmakta ve gün boyu aydınlatılmaktadır.
Üç dış terasta yer alan ince alanlar, (onaylarla) split sistem klima için bir kompresör ve eve yeşillik getirmek için saksılar yerleştirme potansiyeli sunmaktadır.
75 Livingston Street, 24 saat kapı hizmeti, yerinde süpervizör, hizmetliler ve evcil hayvan dostu politikalar sunan son derece talep gören bir tam hizmetli Art Deco kooperatifi. Aylık bakım ücretine ısıtma, sıcak su, gaz, gayrimenkul vergileri, açık bisiklet depolama ve yaklaşık 12' x 5' x 10' boyutunda bireysel kilitlenebilir depolama alanı erişimi dahildir. Bina, %25 ön ödeme talep etmekte ve %1'lik bir flip vergisi bulunmaktadır.
Tarihi Brooklyn Heights'ta ideal bir konumda bulunan 75 Livingston Street, çok sayıda metro hattına (2/3/4/5/A/C/F/G/R) birkaç dakika mesafededir ve Manhattan'a ve ötesine kesintisiz erişim sağlamaktadır. Brooklyn Heights Promenade, Brooklyn Köprüsü Parkı ve Montague Caddesi, Court Caddesi ve Atlantic Caddesi boyunca canlı dükkanlar ve restoranlardan keyif alın. Cobble Hill, Boerum Hill ve DUMBO ise sadece birkaç dakika mesafededir.
Bu, Brooklyn'in en ikonik mahallerinden birinde çok parlak, geniş ve düşünceli bir şekilde yenilenmiş bir eve sahip olma fırsatıdır ve özgün korunan manzaralara sahiptir.
Rising above Brooklyn Heights, Apartment 19B at 75 Livingston Street offers a sundrenched, loftlike residence within one of the neighborhood’s premier full-service cooperative buildings. This expansive home showcases sweeping, uninterrupted, views from three exposures —South, West, and East — capturing breathtaking panoramas across Brooklyn and out to New York Harbor.
Spanning approximately 1,773 square feet, the flexible layout is currently configured as a spacious two-bedroom with two full bathrooms and can be converted to at least three bedrooms (with approvals). A dramatic 40+ foot expanse of living and dining space plus built in desk, creates an exceptional setting for entertaining, relaxing, or working from home — all bathed in extraordinary natural light from sunrise to sunset through 14 oversized, double pane, tilt and turn windows with custom electric Levolor shades.
This home is further enhanced by 9' ceilings, brand-new oak flooring, and custom built-ins throughout, offering both warmth and functionality. A large entry foyer provides a welcoming arrival and presents an opportunity to create an additional sleeping area with plenty of room for a pull-out sleeper sofa, media/game space and/or a second home office. It is conveniently adjacent to a newly redone guest bathroom with a soaking tub and new Miele stackable washer/dryer in a laundry closet with additional pantry storage.
The open kitchen was thoughtfully refreshed in 2026 with custom flat-panel cabinets in a sophisticated Charleston Gray finish, complemented by white Calacatta-pattern quartz countertops and a glossy artisanal ceramic tile backsplash. Ample counter space with seating for four, along with a full suite of stainless-steel appliances — including a brand-new Frigidaire gas range, new Miele dishwasher, new GE microwave, and an LG refrigerator — makes this kitchen as functional as it is stylish.
The primary suite enjoys continued open views from three large windows and features a built-in closet and shelving, along with an en-suite bathroom. Designed as a calming retreat, it showcases refined finishes like glazed porcelain tile, brushed nickel Kohler Purist fixtures, a brand-new ripple-fluted vanity with ceramic sink, a sleek medicine cabinet, and generous storage.
The second bedroom has a large swing-door entry from the foyer and can also be accessed from the primary bedroom. Bright, spacious, and quiet, it offers flexibility for a variety of uses and is bright all day.
Discreet slivers of three outdoor terraces offer the potential (with approvals) to install a compressor for split-system air conditioning and planters to bring greenery into the home.
75 Livingston Street is a highly sought-after, full-service Art Deco cooperative offering a 24-hour door service, live-in superintendent, porters, and pet-friendly policies. Monthly maintenance includes heat, hot water, cooking gas, real estate taxes, open bike storage, and access to an individual lockable storage unit approximately 12' x 5' x 10'. The building requires 25% down and has a 1% flip tax.
Ideally located in landmarked Brooklyn Heights, 75 Livingston Street is moments from multiple subway lines (2/3/4/5/A/C/F/G/R), providing seamless access to Manhattan and beyond. Enjoy the Brooklyn Heights Promenade, Brooklyn Bridge Park, and the vibrant shops and dining along Montague Street, Court Street, and Atlantic Avenue. Cobble Hill, Boerum Hill, and DUMBO are all just minutes away.
This is a prime opportunity to own a very bright, expansive, and thoughtfully renovated home in one of Brooklyn’s most iconic neighborhoods with landmarked views that are generally protected.
This information is not verified for authenticity or accuracy and is not guaranteed and may not reflect all real estate activity in the market. © 2026 The Real Estate Board of New York, Inc., All rights reserved.







