| ID # | 967703 |
| Özellikler | 4 yatak odası, 4 banyo, 1 yarım banyo, bulaşık makinesi, Çamaşır makinesi, Çamaşır kurutma makinesi, garaj, klima, Arsa büyüklüğü: 1.28 dönüm, iç mekan: 4750 ft2, 441m2 |
| İnşaat yılı | 2027 |
| Yıllık vergiler | $2,530 |
| Yakıt türü | Elektrik |
| Isıtma türü | Elektrik |
| Klima | Merkezi Klima |
| Bodrum kat | Tam Bodrum |
![]() |
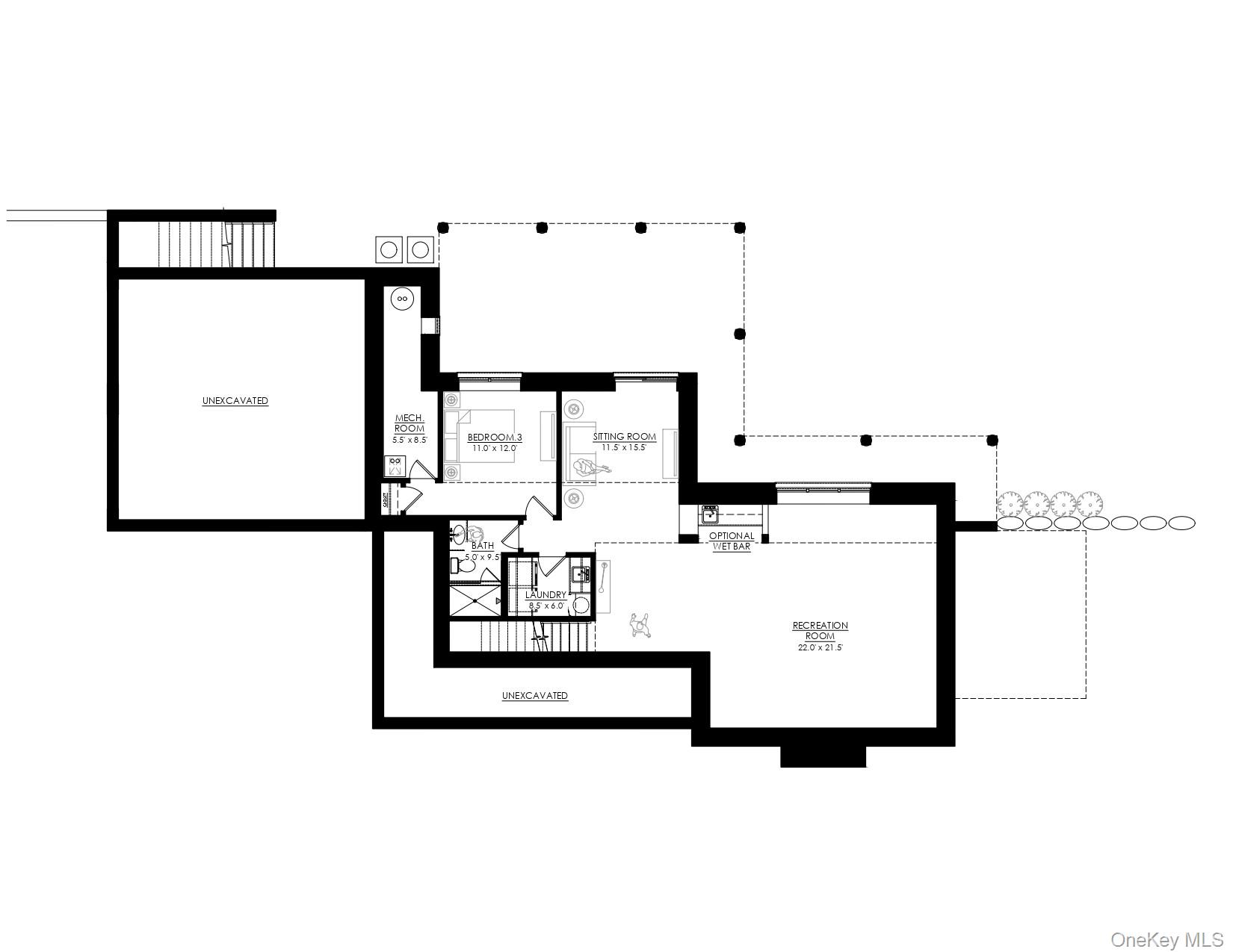
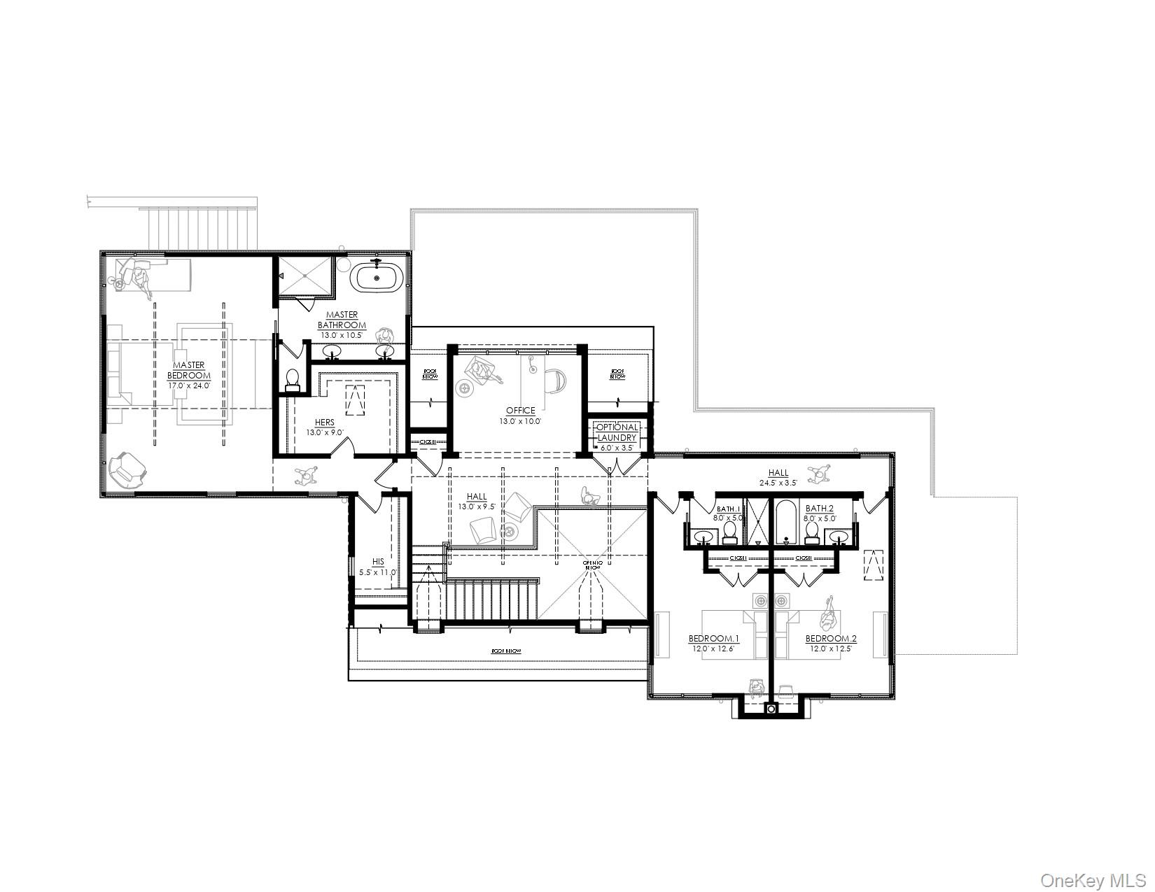
Armonk'ta özel bir yolda yer alan, 1.28 dönümlük alanda inşa edilmiş, tamamen yeni özel yapım modern koloniyal tarzda bir ev, olağanüstü kalite sunmakta ve alıcıya bitişleri özelleştirme seçeneği sağlamaktadır. Bu 4 yatak odalı, 4 banyolu ve ek bir tuvalet odası bulunan ev, üç kat boyunca yaklaşık 4750 sq ft (yaklaşık 441 m²) tamamlanmış yaşam alanı sunmakta olup, binanın toplam büyüklüğü 5835 sq ft (yaklaşık 543 m²) dir.
İki katlı bir hol, alt kata açılarak ana ve üst katlar arasında dengeli bir bağlantı sağlamakta ve ana kata ek doğal ışık getirmektedir. Birinci kat; mutfak, yemek odası ve terasa, şömineye erişimi olan oturma odası ile birlikte günlük yaşam ve eğlence amacıyla tasarlanmış bir mudroom ve tuvalet odası içermektedir. Ekli iki araç garajı ana katı tamamlamaktadır.
İkinci kattaki ana yatak odasında iki tane yürüyüşe açık dolap ve küvet, ayrı duş ve çift lavabo bulunan bir spa tarzı banyo bulunmaktadır. İki ek yatak odası, bir ofis, bir çamaşır odası ve holü gören açık bir koridor bu katı tamamlamaktadır.
Tamamlanmış alt kat esnek alanlar sunmakta olup, bir tam banyolu dördüncü yatak odası, ıslak bar bulunan bir oturma veya medya odası, bir ofis veya oyun odası, ikinci bir çamaşır alanı ve bir mekanik odası içermektedir.
Ek özellikler arasında kapalı bir veranda, teras ve düşünülerek planlanmış kat planları bulunmaktadır. Armonk şehir merkezine, okullara ve ana ulaşım yollarına yakın bir konumda yer almaktadır. Ödüllü Byram Hills Okul Bölgesi içinde bulunmaktadır. White Plains Metro-North istasyonuna yakın, Grand Central Terminal, Manhattan'a trenle veya arabanızla yaklaşık 42 dakikalık mesafededir. Tamamlanma tarihi 2027.
Brand-new custom construction modern colonial-style home set on 1.28 acres on a private lane in Armonk, offering exceptional quality and the opportunity for a buyer with an option to customize finishes. This 4-bedroom, 4-bath home with an additional powder room provides approximately 4750 sq ft of finished living space across three levels, total size of the building is of 5835 sq.f.
A two-story foyer opens to below, creating a balanced connection between the main and upper levels and bringing additional natural light to the main floor. The first floor includes a kitchen, dining room, and living room with access to the deck, fireplace, along with a mudroom and powder room, designed for both daily living and entertaining. An attached two-car garage completes the main level.
The second floor features a primary bedroom with two walk-in closets and a spa-style bath with soaking tub, separate shower, and double sinks. Two additional bedrooms, an office, a laundry room, and an open hallway overlooking the foyer complete this level.
The finished lower level offers flexible space, including a fourth bedroom with a full bath, a living or media room with wet bar, an office or recreation room, a second laundry area, and a mechanical room.
Additional highlights include a covered porch, deck, and thoughtfully planned layouts throughout. Conveniently located close to Armonk town center, schools, and major commuting routes. Situated in the award-winning Byram Hills School District. Close to the White Plains Metro-North station, approximately 42 minutes by train or drive to Grand Central Terminal, Manhattan. Completion 2027.
This information is not verified for authenticity or accuracy and is not guaranteed and may not reflect all real estate activity in the market. Listing courtesy of Compass Greater NY, LLC © 2026







