kiralamalar
Adres: ‎New York City
Posta Kodu: 10006
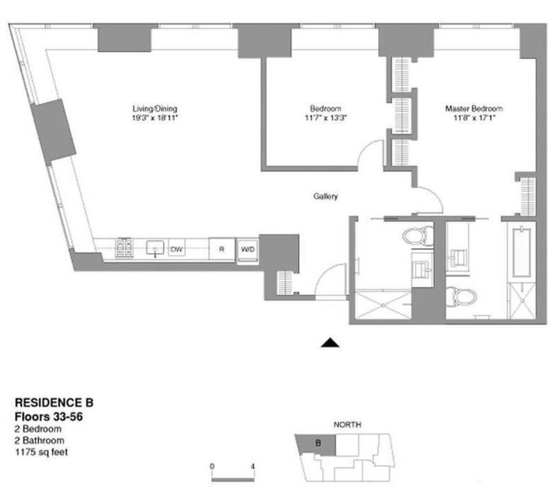
2 yatak odası, 2 banyo, 1175 ft2
分享到
$8,950
ID # RLS20073905
Türkçe ‖ Turkish
Are you the listing agent? Sign up to add your name and cell #
Compass Office: ‍212-913-9058

$8,950 - New York City, Financial District, NY 10006|ID # RLS20073905

Property Description « Türkçe ‖ Turkish »

Sadece eşyalarla.
Büyüleyici bir açık kat planına sahip, One World Trade, Özgürlük Heykeli ve Hudson Nehri’nin nefes kesici manzaralarını sunan iki yatak odalı, iki banyolu bir daire. Bu ev, FiDi ve TriBeCa'nın kesişim noktasında bulunan son derece saygın bir lüks apartman dairesinde yer alıyor. Esnek kira süresi.

Giriş ve galeri, içeri adım attığınızda zarafeti hissettirir ve mükemmel modern detaylar ve finitionlar sunar. Oturma/yemek odası cömertçe geniştir, bitişik mutfak ise üst düzey panellere ve gizli aletlere, bulaşık makinesi de dahil olmak üzere, sahiptir. Kuzey ve batıya bakan muazzam pencereler, gün boyunca doğal ışığı içeri alır ve benzersiz bir Downtown manzarası sunar. Koyu ahşap akçaağaç zeminler her yerde kullanılmıştır; mobilyalar Tui tarafından sağlanmıştır. Ana yatak odası kendi kuzey cephesine ve en az üç tane büyük dolaba sahiptir. Çarpıcı ana banyo duşakabine ve ayrıca ayrı bir derin küvete, özel vanity’e, çok sayıda aynaya ve benzersiz fayanslara sahiptir. İkinci pencereli yatak odasının karşısında bir duş bulunan ek bir tam banyo ve bir çamaşır makinesi/kurutucu ünitesi bulunan ayrı bir çamaşır köşesi dairenin düzenini tamamlar. Her odada termostatik kontrolün tadını çıkarırken kayar kapılar ve Omnia kol donanımına hayran kalın. Kira, ısı ve sıcak su, elektrik ve ısıtmalı havlulukları içerir.

2010 yılında tamamlanan W New York Downtown Hotel and Residences, Dünya Ticaret Merkezi Anıtı'nın köşesinde yer alan 57 katlı lüks bir kulesidir. Sakinler, binanın son teknoloji fitness tesisine, W'nin ikonik Whatever/Whenever hizmetine, tercih edilen yemek rezervasyonlarına, otelin imza Skinos restoranı ve barında oturma ve konut içinde yemek hizmetine erişim sağlar. Ayrıca, sakinler büyük düz ekranlar, video oyun sistemleri ve kablosuz İnternet bulunan dijital bir salona, bir medya izleme odasına, kafeye, spor salonuna ve New York City manzaralı özel bir sakinler terasına özel erişim hakkına sahiptir. Asansörlü binada 24 saat kapıcı ve konsiyerj hizmeti bulunmaktadır ve ayrıca bir canlı süper de mevcuttur. İyi bir konumda, Downtown'un en iyi yeşil alanları, butik mağazaları, restoranları, barları, kültürel mekanları ve gece hayatı noktaları kısa bir yürüme mesafesindedir. R ve 1 trenleri de sadece birkaç blok ötede durmaktadır.

ID #‎ RLS20073905
Özellikler2 yatak odası, 2 banyo, iç mekan: 1175 ft2, 109m2, Binada 223 ünite var, 56 katlı bina
İnşaat yılı
2010
Subway2 min: 1
3 min: R, W, 4, 5
5 min: J, Z
6 min: 2, 3, E
7 min: A, C
Are you the listing agent? Sign up to add your name/photo/cell to your flyers. helpdesk@Samaki.com
房屋概況 Property Description « Türkçe ‖ Turkish »« ENGLISH »

Sadece eşyalarla.
Büyüleyici bir açık kat planına sahip, One World Trade, Özgürlük Heykeli ve Hudson Nehri’nin nefes kesici manzaralarını sunan iki yatak odalı, iki banyolu bir daire. Bu ev, FiDi ve TriBeCa'nın kesişim noktasında bulunan son derece saygın bir lüks apartman dairesinde yer alıyor. Esnek kira süresi.

Giriş ve galeri, içeri adım attığınızda zarafeti hissettirir ve mükemmel modern detaylar ve finitionlar sunar. Oturma/yemek odası cömertçe geniştir, bitişik mutfak ise üst düzey panellere ve gizli aletlere, bulaşık makinesi de dahil olmak üzere, sahiptir. Kuzey ve batıya bakan muazzam pencereler, gün boyunca doğal ışığı içeri alır ve benzersiz bir Downtown manzarası sunar. Koyu ahşap akçaağaç zeminler her yerde kullanılmıştır; mobilyalar Tui tarafından sağlanmıştır. Ana yatak odası kendi kuzey cephesine ve en az üç tane büyük dolaba sahiptir. Çarpıcı ana banyo duşakabine ve ayrıca ayrı bir derin küvete, özel vanity’e, çok sayıda aynaya ve benzersiz fayanslara sahiptir. İkinci pencereli yatak odasının karşısında bir duş bulunan ek bir tam banyo ve bir çamaşır makinesi/kurutucu ünitesi bulunan ayrı bir çamaşır köşesi dairenin düzenini tamamlar. Her odada termostatik kontrolün tadını çıkarırken kayar kapılar ve Omnia kol donanımına hayran kalın. Kira, ısı ve sıcak su, elektrik ve ısıtmalı havlulukları içerir.

2010 yılında tamamlanan W New York Downtown Hotel and Residences, Dünya Ticaret Merkezi Anıtı'nın köşesinde yer alan 57 katlı lüks bir kulesidir. Sakinler, binanın son teknoloji fitness tesisine, W'nin ikonik Whatever/Whenever hizmetine, tercih edilen yemek rezervasyonlarına, otelin imza Skinos restoranı ve barında oturma ve konut içinde yemek hizmetine erişim sağlar. Ayrıca, sakinler büyük düz ekranlar, video oyun sistemleri ve kablosuz İnternet bulunan dijital bir salona, bir medya izleme odasına, kafeye, spor salonuna ve New York City manzaralı özel bir sakinler terasına özel erişim hakkına sahiptir. Asansörlü binada 24 saat kapıcı ve konsiyerj hizmeti bulunmaktadır ve ayrıca bir canlı süper de mevcuttur. İyi bir konumda, Downtown'un en iyi yeşil alanları, butik mağazaları, restoranları, barları, kültürel mekanları ve gece hayatı noktaları kısa bir yürüme mesafesindedir. R ve 1 trenleri de sadece birkaç blok ötede durmaktadır.

Read the English version or choose another language

This information is not verified for authenticity or accuracy and is not guaranteed and may not reflect all real estate activity in the market. © 2026 The Real Estate Board of New York, Inc., All rights reserved.

Courtesy of Compass

公司: ‍212-913-9058



分享 Share
$8,950
kiralamalar
ID # RLS20073905
‎New York City
New York City, NY 10006
2 yatak odası, 2 banyo, 1175 ft2


Listing Agent(s):‎
Are you the listing agent? Sign up to add your name and cell #‎
Office: ‍212-913-9058
请说您在SAMAKI.COM看此广告
请也给我ID # RLS20073905