KONUT SATIŞLARI
Adres: ‎9 Agnes Court
Posta Kodu: 11747
4 yatak odası, 2 banyo, 1 yarım banyo, 2000 ft2
分享到
$799,990
MLS # 955251
Türkçe ‖ Turkish
Are you the listing agent? Sign up to add your name and cell #
Coldwell Banker American Homes Office: ‍631-588-9090

$799,990 - 9 Agnes Court, Melville, NY 11747|MLS # 955251

Property Description « Türkçe ‖ Turkish »

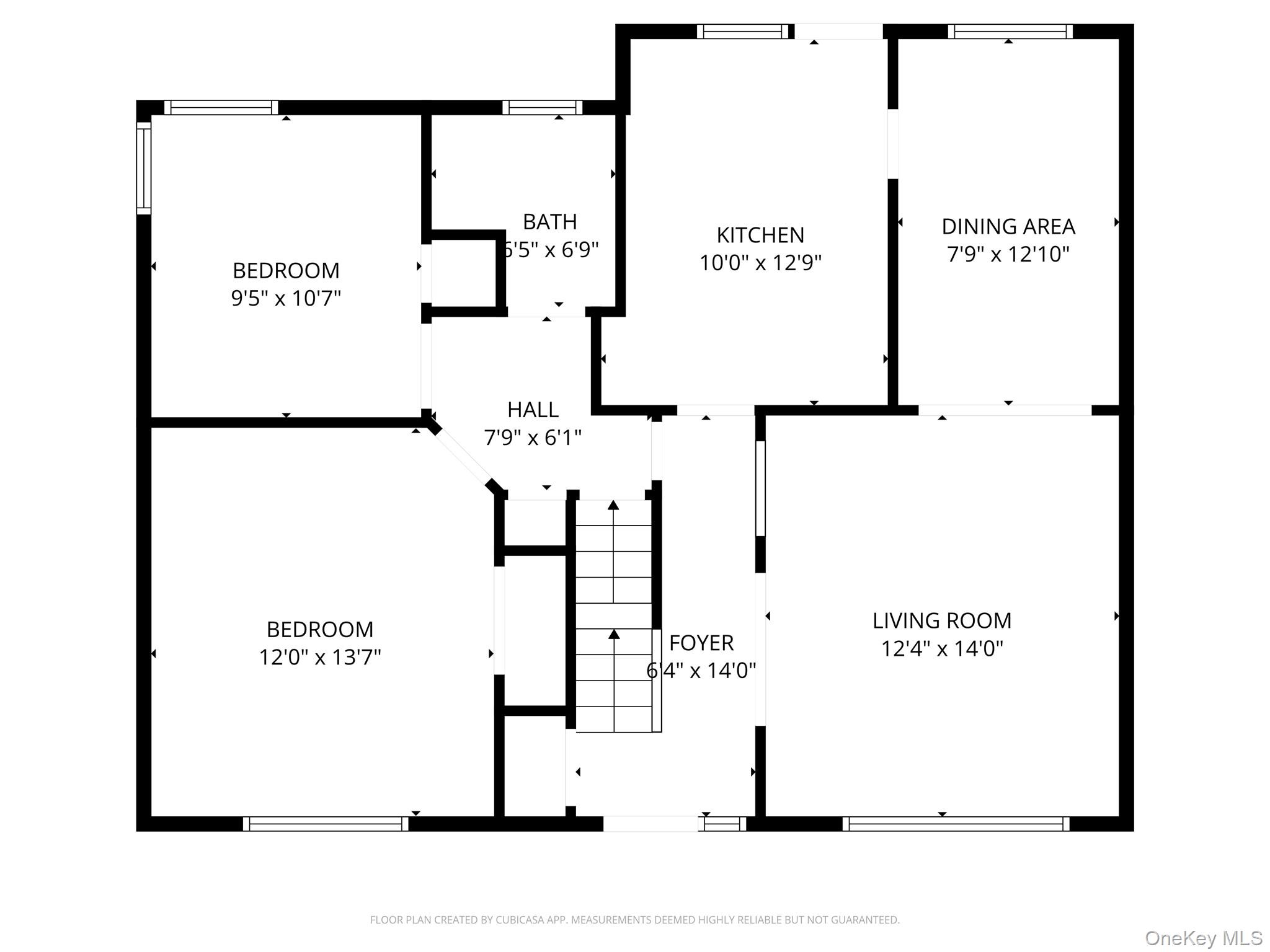
Bu güzel bir şekilde güncellenmiş döner çatıya sahip Cape'e hoş geldiniz, bir cul-de-sac'ta yer alıyor ve ahşap zeminlerle davetkar bir giriş holü sunuyor. Ev taze bir şekilde boyanmış, her yerde süslü taç dişleme ve detaylı ahşap işçiliği ile Andersen pencereleri sergilemektedir. Mutfak, granit tezgahlar, yeni bir konveksiyonlu fırın içeriyor ve resmi bir yemek odasına açılıyor. Ana kat, radyant zemin ısıtması olan güncellenmiş tam banyo ile birlikte iki yatak odası içeriyor (2023). Döner çatıdaki ikinci kat, her biri bir yürüyüş alanı ve güncellenmiş tam banyo (2022) içeren iki iyi döşenmiş yatak odası sunuyor. Tamamlanmış bodrum, ağaç yakıtlı şömine, ıslak bar, LED spot ışıklar ve eğlence için mükemmel yerleşik hoparlör kabloları bulunan geniş bir oturma odası ile yaşam alanınızı genişletiyor. Bir çamaşır odası, yarım banyo ve ev ofisi, spor odası veya medya alanı için esnek seçenekler sunan çok yönlü bir bonus alanı mevcut. Ek özellikler arasında 3 bölge yağlı radyatör ısıtması, 2 bölge merkezi hava, elektrikli kapı açıcıya sahip bir bağlı garaj ve ön ve arka bahçede yer alan yer altı sprinkleri bulunmaktadır. Dışarıda, olgun çok yıllık bitkilerle çevrili huzurlu, tamamen kapalı bahçede, yağmur veya güneş altında dış mekanın tadını çıkarabileceğiniz kapalı bir teras bulunmaktadır. Melville'in arzu edilen Triangle bölgesinde, Schneider's Farm, White Post Farm ve St. Anthony's School arasında yer alan bu ev, gerçekten de hem huzurlu bir arka bahçe dinlencesi hem de ihtiyacınız olan her şeye yakın bir konum sunarak en iyi ikisini bir arada sunuyor.

MLS #‎ 955251
Özellikler4 yatak odası, 2 banyo, 1 yarım banyo, bulaşık makinesi, Çamaşır makinesi, Çamaşır kurutma makinesi, garaj, klima, Arsa büyüklüğü: 0.12 dönüm, iç mekan: 2000 ft2, 186m2
İnşaat yılı
1960
Yıllık vergiler$12,594
Yakıt türüYağ
Isıtma türüRadyant Isıtma (Zemin/Duvar)
KlimaMerkezi Klima
Bodrum katTam Bodrum
Garaj tipiBitişik
Tren (LIRR)3.5 mil: "Huntington"
3.5 mil: "Cold Spring Harbor"
Are you the listing agent? Sign up to add your name/photo/cell to your flyers. helpdesk@Samaki.com
房屋概況 Property Description « Türkçe ‖ Turkish »« ENGLISH »

Bu güzel bir şekilde güncellenmiş döner çatıya sahip Cape'e hoş geldiniz, bir cul-de-sac'ta yer alıyor ve ahşap zeminlerle davetkar bir giriş holü sunuyor. Ev taze bir şekilde boyanmış, her yerde süslü taç dişleme ve detaylı ahşap işçiliği ile Andersen pencereleri sergilemektedir. Mutfak, granit tezgahlar, yeni bir konveksiyonlu fırın içeriyor ve resmi bir yemek odasına açılıyor. Ana kat, radyant zemin ısıtması olan güncellenmiş tam banyo ile birlikte iki yatak odası içeriyor (2023). Döner çatıdaki ikinci kat, her biri bir yürüyüş alanı ve güncellenmiş tam banyo (2022) içeren iki iyi döşenmiş yatak odası sunuyor. Tamamlanmış bodrum, ağaç yakıtlı şömine, ıslak bar, LED spot ışıklar ve eğlence için mükemmel yerleşik hoparlör kabloları bulunan geniş bir oturma odası ile yaşam alanınızı genişletiyor. Bir çamaşır odası, yarım banyo ve ev ofisi, spor odası veya medya alanı için esnek seçenekler sunan çok yönlü bir bonus alanı mevcut. Ek özellikler arasında 3 bölge yağlı radyatör ısıtması, 2 bölge merkezi hava, elektrikli kapı açıcıya sahip bir bağlı garaj ve ön ve arka bahçede yer alan yer altı sprinkleri bulunmaktadır. Dışarıda, olgun çok yıllık bitkilerle çevrili huzurlu, tamamen kapalı bahçede, yağmur veya güneş altında dış mekanın tadını çıkarabileceğiniz kapalı bir teras bulunmaktadır. Melville'in arzu edilen Triangle bölgesinde, Schneider's Farm, White Post Farm ve St. Anthony's School arasında yer alan bu ev, gerçekten de hem huzurlu bir arka bahçe dinlencesi hem de ihtiyacınız olan her şeye yakın bir konum sunarak en iyi ikisini bir arada sunuyor.

Read the English version or choose another language

This information is not verified for authenticity or accuracy and is not guaranteed and may not reflect all real estate activity in the market. Listing courtesy of Coldwell Banker American Homes © 2026

Courtesy of Coldwell Banker American Homes

公司: ‍631-588-9090




分享 Share
$799,990
KONUT SATIŞLARI
MLS # 955251
‎9 Agnes Court
Melville, NY 11747
4 yatak odası, 2 banyo, 1 yarım banyo, 2000 ft2


Listing Agent(s):‎
Are you the listing agent?
Sign up to add your name and cell #‎
Office: ‍631-588-9090
请说您在SAMAKI.COM看此广告
请也给我MLS # 955251