| ID # | RLS20062248 |
| Özellikler | 3 yatak odası, 2 banyo, Çamaşır makinesi, Çamaşır kurutma makinesi, iç mekan: 1200 ft2, 111m2, Binada 8 ünite var, 4 katlı bina |
| İnşaat yılı | 1930 |
| Otobüs | 1 dakika: B38 |
| 2 dakika: B25, B26, B52 | |
| 5 dakika: B69 | |
| 6 dakika: B41, B45, B67 | |
| 7 dakika: B103, B63 | |
| 8 dakika: B54, B65 | |
| Subway | 2 min: C, G |
| 6 min: B, Q, 2, 3 | |
| 7 min: 4, 5 | |
| 8 min: D, N, R | |
| Tren (LIRR) | 0.3 mil: "Atlantic Terminal" |
| 1.5 mil: "Nostrand Avenue" | |
![]() |
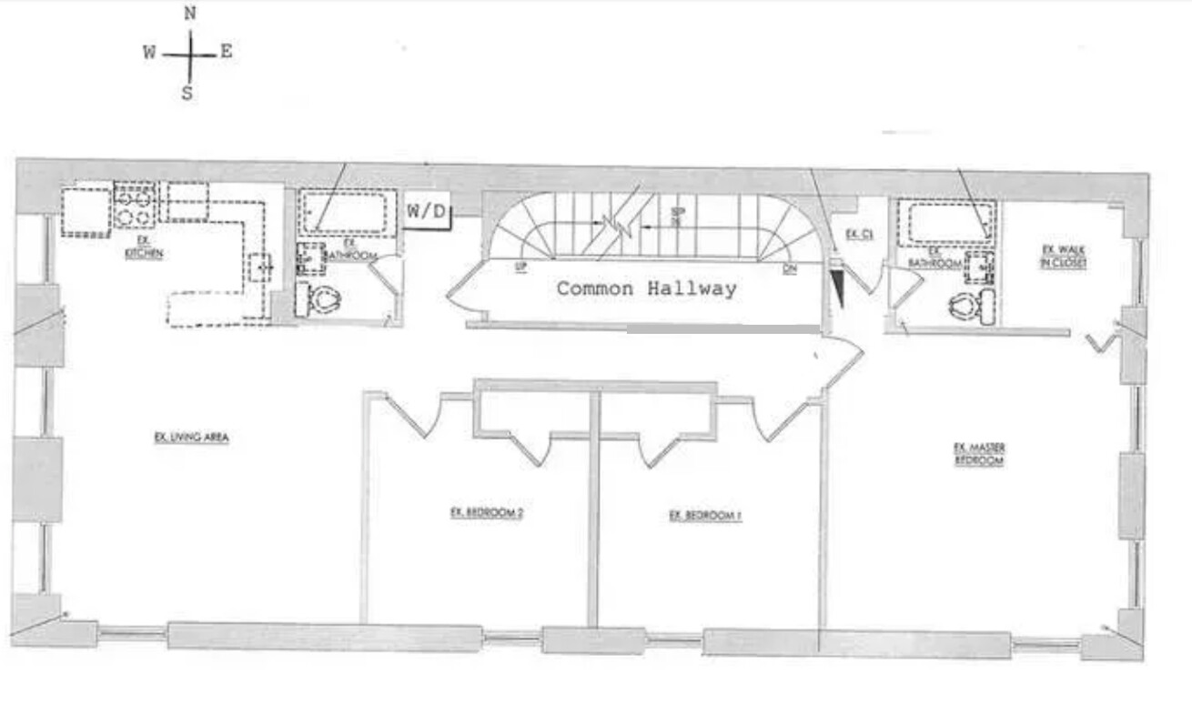
Yeni yenilenmiş gerçek üç odalı daire, Fort Greene'nin merkezi konumunda. Bu aydınlık birim, doğu, batı ve güney cephelerine sahip olup güzel manzaralar ve bolca güneş ışığı sağlar. Ana suite kendi tam banyosu ve yürüyüş yapılabilen pencereli dolabıyla birlikte gelir. Bu gerçekten de üç odalı bir dairdir - tüm odalar kolayca bir kraliçe boyu yatak alabilir.
Bu, yenilik ve eskiyi mükemmel bir şekilde harmanlayan bir örnektir! Orijinal detaylar korunmuşken, tamamen yeni paslanmaz çelik aletler, birim içi çamaşır makinesi/kurutucu ve merkezi klima, bu 1930'lar evini 21. yüzyıla taşıyor.
Hayvan kabul edilmektedir, durum bazında. 1 Ocak itibarıyla 18 aylık kira sözleşmesi için uygundur.
Kira sözleşmesi imzalandığında ilk ayın kirası ve bir ay depozito ödenmelidir.
Başvuru ücreti 25 $/başvuran.
Newly renovated true three bedroom apartment in prime Fort Greene. This bright unit has east, west, and southern exposures allowing beautiful views and plenty of sunshine. The primary suite features its own full bath and walk-in windowed closet. This is a true three bedroom apartment - all rooms will easily accommodate a queen sized bed.
This is the perfect mix of new and old! Original details remain while brand new stainless steel appliances, an in-unit washer/dryer, and central AC bring this 1930's home to the 21st century.
Pets allowed case-by-case. Available January 1st for an 18 month lease.
First months rent and one month security due at lease signing.
Application fee $25/applicant.
This information is not verified for authenticity or accuracy and is not guaranteed and may not reflect all real estate activity in the market. ©2025 The Real Estate Board of New York, Inc., All rights reserved.






