| ID # | RLS20062070 |
| Özellikler | 2 yatak odası, 1 banyo |
| İnşaat yılı | 1960 |
| Bakım ücretleri | $1,508 |
| Subway | 7 min: 1 |
| 10 min: A, C, E, B, D, F, M | |
![]() |
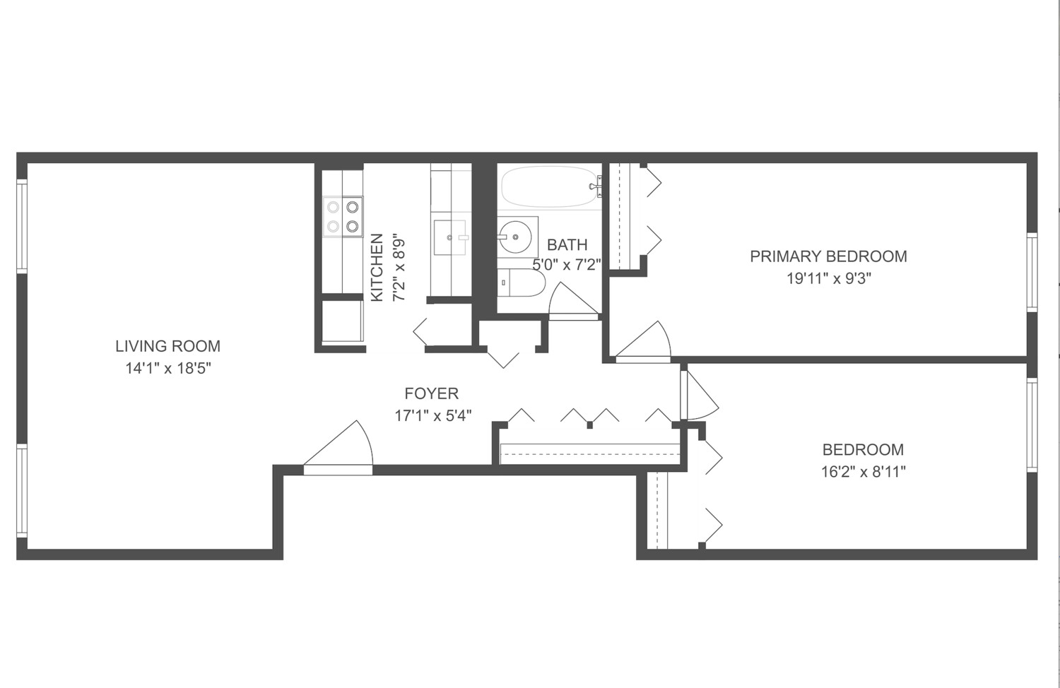
Residence 5A, güneşli güney cephelerine sahip, cömertçe oranlanmış iki yatak odalı, bir banyolu bir dairedir ve New York City'nin en çekici ve arzu edilen mahallelerinden biri olan West Village'ın kalbinde mükemmel bir şekilde yer almaktadır. Ev yenileme gerektirmektedir. Yeni vizyonunuzu oluşturmak için mimarinizi getirin.
Hoş karşılamalı girişten geçerek, misafir ağırlamak için mükemmel olan geniş oturma ve yemek odasına girin. Ayrı mutfak, tam bir alet paketi ve bol miktarda tezgah ve dolap alanı sunmaktadır. Holde, yeterli depolama alanı sağlamak amacıyla üç büyük dolap bulunmaktadır. Her iki yatak odası da kral boy yatakları barındıracak kadar geniş olup, her biri içinde gömme depolama alanı bulunan büyük bir dolaba sahiptir.
137 Barrow Street, mükemmel mali durumdaki iyi bakımlı bir kooperatiftir ve bu, düşük aylık bakım ücretlerine yol açmaktadır. Binanın ideal konumu, sizi Hudson Parkı, yerel olanaklar, kafeler ve Manhattan’ın en iyi restoranlarından bazılarına, örneğin The Eighty-Six, I Sodi, Dante gibi mekanlara birkaç adım uzaklıkta bırakmaktadır. Olanaklar arasında yerinde yönetici, daimi süpervizör, bisiklet odası, ek çamaşır odası ve ızgaralar, bocce topu sahası ve daha fazlasıyla donatılmış tam bir ortak bahçe bulunmaktadır. Bina evcil hayvan dostudur ve iki yıl sonra kefiller, birlikte satın alma, hediye verme ve alt kiralama izin vermektedir. Lütfen bunun beşinci kat merdivenle çıkılan bir daire olduğunu unutmayın.
Residence 5A is a generously proportioned two-bedroom 1 bathroom apartment with sunny southern exposures and is perfectly nestled in the heart of West Village, one of New York City's most charming and desirable neighborhoods.The home is in need of a renovation. Bring your architect to create your new vision.
Enter through the welcoming foyer and into the spacious living and dining room that is perfect for entertaining. The separate kitchen features a full appliance package, as well as an abundance of counter and cabinet space. Located in the hall are three large closets to provide ample storage space. Both bedrooms are generous in size to accommodate king sized beds, with each featuring a large closet with built in storage
137 Barrow Street is a well-maintained co-op that is in excellent financial condition, resulting in low monthly maintenance. The building's ideal location leaves you moments away from Hudson Park, local amenities, coffee shops as well as some of Manhattans finest restaurants such as The Eighty-Six, I Sodi, Dante and more. Amenities include on-site managing agent, live-in superintendent, bike room, additional laundry room, and a fully decked out common garden complete with grills, bocce ball court, and more. The building is pet friendly and allows guarantors, co-purchasing, gifting and subletting after two years. Please note this is a fifth floor walk up.
This information is not verified for authenticity or accuracy and is not guaranteed and may not reflect all real estate activity in the market. ©2025 The Real Estate Board of New York, Inc., All rights reserved.







