| ID # | RLS20061899 |
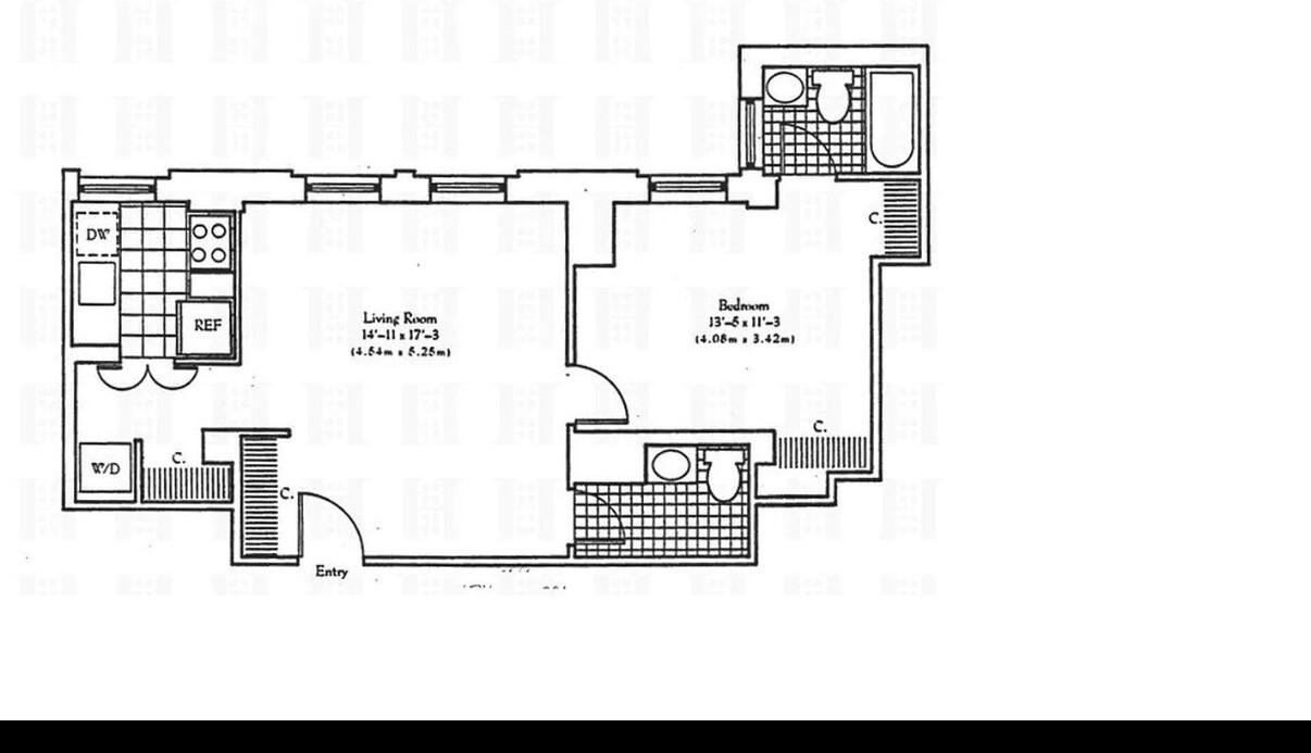
| Özellikler | TRUMP PARC 1 yatak odası, 1 banyo, 1 yarım banyo, Çamaşır makinesi, Çamaşır kurutma makinesi, iç mekan: 651 ft2, 60m2, Binada 340 ünite var, 38 katlı bina |
| İnşaat yılı | 1930 |
| Subway | 3 min: F |
| 4 min: N, Q, R, W | |
| 6 min: A, B, C, D, 1, E | |
| 8 min: M | |
![]() |
106 Central Park South, Daire 10F’deki Özel Kentsel Sığınağınıza Hoş Geldiniz
Ünlü Milyarderler Sırası üzerinde, Central Park'ın tam karşısında bulunan bu güzelce yenilenmiş eski döneme ait yüksek katlı apartmanda, New York City yaşamının zirvesini deneyimleyin.
651 ayak karelik bu daire, zamansız zarafeti modern incelikle birleştiriyor.
Düşünceli bir şekilde tasarlanmış yerleşim planı, aydınlık ve davetkar bir oturma alanına mükemmel bir şekilde akış gösteren açık ve klasik bir mutfak sunuyor. Konfor ve stil için tasarlanmış bir geniş yatak odası ve iki tertemiz banyo ile keyfini çıkartın.
Tam zamanlı beyaz eldivenli concierge hizmetinin sunduğu kolaylığın tadını çıkarın, böylece sizi karşılayan bir ortam sağlanıyor. Sakin yürüyüşler için Central Park'a adım atın veya Central Park South'u Manhattan'ın en çok arzulanan adreslerinden biri yapan sınırsız yemek, alışveriş ve eğlence olanaklarını keşfedin.
Bu eski döneme ait değerli taşta tarihi cazibe ile çağdaş lüksün mükemmel karışımını keşfedin.
Bugün özel gösteriminizi planlayın ve New York City'nin en arzu edilen mahallelerinden birinde yeni bölümünüze başlayın.
Kira sözleşmesi imzalanırken ödenecek ücretler:
İlk ayın kirası
Bir aylık güvenlik depozitosu
$20 Kredi Kontrolü
Bina tarafından uygulanabilecek ek başvuru ücretleri geçerli olabilir.
Welcome to Your Private Urban Retreat at 106 Central Park South, Unit 10F
Experience the pinnacle of New York City living in this beautifully renovated pre-war high-rise condominium, perfectly situated on the iconic Billionaires' Row directly across from Central Park.
This 651-square-foot residence combines timeless elegance with modern sophistication.
The thoughtfully designed layout features an open, classic kitchen that flows seamlessly into a bright and inviting living area. Enjoy one spacious bedroom and two pristine bathrooms, all crafted for comfort and style.
Indulge in the convenience of full-time white-glove concierge service, ensuring a welcoming environment. Step outside to Central Park for serene strolls or explore the world-class dining, shopping, and entertainment that make Central Park South one of Manhattan's most coveted addresses.
Discover the perfect blend of historic charm and contemporary luxury in this pre-war gem.
Schedule your private showing today and begin your next chapter in one of New York City's most desirable neighborhoods.
Fees due at lease signing:
First month's rent
One month security
$20 Credit Check
Additional application fees imposed by the building may apply
This information is not verified for authenticity or accuracy and is not guaranteed and may not reflect all real estate activity in the market. ©2025 The Real Estate Board of New York, Inc., All rights reserved.







