| ID # | RLS20060151 |
| Özellikler | 2 yatak odası, 1 banyo, bulaşık makinesi, Binada 2 ünite var, 3 katlı bina |
| İnşaat yılı | 1899 |
| Otobüs | 1 dakika: B15 |
| 2 dakika: B26, B43 | |
| 4 dakika: B52 | |
| 6 dakika: B25 | |
| 10 dakika: B38, B44, B46 | |
| Subway | 7 min: C |
| Tren (LIRR) | 0.6 mil: "Nostrand Avenue" |
| 1.9 mil: "Atlantic Terminal" | |
![]() |
Lütfen bir sanal tur için bir video izleyin/isteyin.
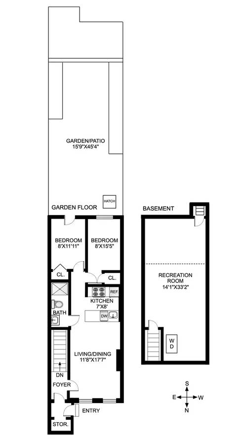
Bedford-Stuyvesant'ın kalbinde yer alan bu yeni tadilattan geçmiş dubleksi keşfedin; modern konforlar ve geniş yaşam alanları sunmaktadır. Bu iki yatak odalı, bir banyo bulunan ev, aydınlık ve açık bir yerleşim planına, bulaşık makinesi ve mikrodalgaya sahip şık bir mutfağa ve dinlenmek veya eğlenmek için mükemmel olan bahçe erişimine sahiptir.
Alt kat, **birimin içinde çamaşır makinesi/kurutma makinesi bulunan büyük bir bodrum** ve ikinci bir oturma alanı, ev ofisi veya yaratıcı bir çalışma alanı için bolca alan sunmaktadır. Ek özellikler arasında **merkezi havalandırma**, harika depolama alanı ve her yerde düşünceli detaylar bulunmaktadır.
**Isınma ve sıcak su dahildir**; kiracılar yemek pişirme gazı ve elektrikten sorumludur. **Küçük köpekler kabul edilmektedir** (özür dileriz, kediler yoktur).
Hepsi popüler restoranlar, kafeler ve dükkanlarla çevrili, ulaşım için kolay erişim imkanı olan, gerçekten her şeye yakın olan prime Bed-Stuy'da yer almaktadır.
*Please watch/request a video of the unit for a virtual tour*
Discover this newly renovated duplex in the heart of Bedford-Stuyvesant, offering modern comforts and generous living space. This two-bedroom, one-bath home features a bright and open layout, a sleek updated kitchen with dishwasher and microwave, and garden access, perfect for relaxing or entertaining.
The lower level includes a **large basement with an in-unit washer/dryer** and plenty of room for a second living area, home office, or creative workspace. Additional highlights include **central air**, great storage, and thoughtful finishes throughout.
**Heat and hot water are included**; tenants are responsible for cooking gas and electricity. **Small dogs are welcome** (sorry, no cats).
All located in prime Bed-Stuy, surrounded by popular restaurants, cafés, shops, and easy access to transportation—truly close to everything.
This information is not verified for authenticity or accuracy and is not guaranteed and may not reflect all real estate activity in the market. ©2025 The Real Estate Board of New York, Inc., All rights reserved.







