| MLS # | 930707 |
| Özellikler | 5 yatak odası, 7 banyo, 1 yarım banyo, bulaşık makinesi, Çamaşır makinesi, Çamaşır kurutma makinesi, garaj, klima, Arsa büyüklüğü: 2 ft2, iç mekan: 8600 ft2, 799m2 |
| İnşaat yılı | 2025 |
| Yakıt türü | Gaz |
| Klima | Merkezi Klima |
| Bodrum kat | Tam Bodrum |
| Garaj tipi | Bitişik |
| Tren (LIRR) | 3 mil: "Hicksville" |
| 3.3 mil: "Syosset" | |
![]() |
High Point Court / Parsel A – Brookville
Kuzey Kıyısı'nın en seçkin yerlerinden birinde özel lüks bir malikanenin yaratılması için nadir bir fırsat. Steven E.Homburger AIA tarafından tasarlanan planlar, Gallagher Homburger Group, Mimarlar, PLLC tarafından hazırlanmıştır. Kendisi birçok Altın Kıyısı Malikanesi tasarımı ile tanınmaktadır.
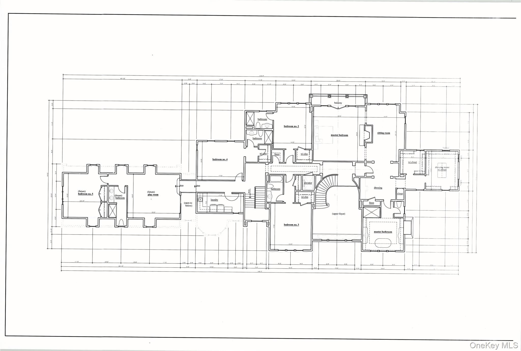
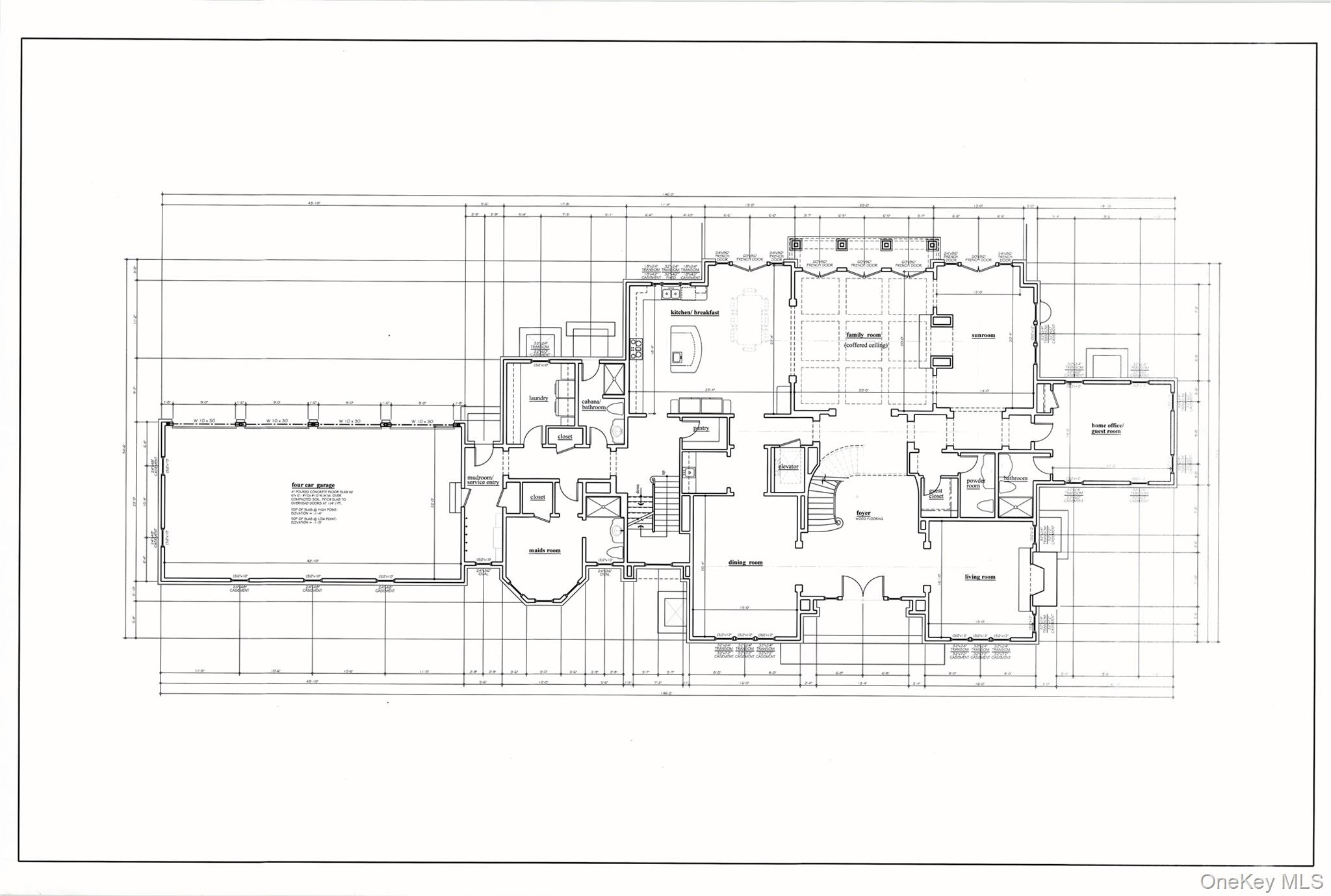
Bu özel cul-de-sac parsel, alıcının büyük ölçekli ve şık bir konut inşa etmesine olanak sağlayan tam mimari malikane planları ile sunulmaktadır. Planlar, büyük eğlence odaları, birinci kat misafir süiti, ev ofisi/kütüphane, güneş odası, dört araçlık garaj ve oturma odası, teras ve çift giyinme odalı özel bir ana süit kanadı içermektedir.
Alıcı, mutfak stili, dolaplar, zemin kaplaması, ahşap işleri, karolar, armatürler ve renk paleti gibi iç mekan detaylarını seçme esnekliğine sahiptir. Geleneksel, geçişken veya modern zevke uygun olarak beyaz eşyalarınızı, aydınlatmanızı ve iç tasarım yönünüzü seçebilir ve dış mekan peyzaj tasarımını belirleyebilirsiniz.
Bir jeoteknik değerlendirme yapılmış ve yeraltı suyu bulunmadığı ve güçlendirilmiş beton havuz için uygun olduğu doğrulanmıştır, bu da inşaat ve onay sürecini kolaylaştırmaktadır. Brookville ve Engineers Country Club'lara, LIU Post'a, özel akademilere ve ana ulaşım yollarına yakın, Jericho Okul Bölgesi'nde yer almaktadır.
Tarzınızı ve vizyonunuzu yansıtan bir ev inşa edin.
Tam plan seti ve özel randevu mevcuttur.
Bu listeleme sırasında altyapı hizmetleri mevcut değildir. Planlar hazırdır, müteahhitle görüşme ve plan değişiklikleri yapma seçeneği bulunmaktadır.
*Sahibi, iç mekan tasarımcısı Anthony Jiaramita ile işbirliği yapmıştır.
High Point Court / Parcel A – Brookville
A rare opportunity to create a custom luxury estate in one of the North Shore’s most prestigious settings. Plans designed by Steven E.Homburger AIA with
Gallagher Homburger Group ,Architects, PLLC. He is known for many Gold Coast Mansions designs.
This private cul-de-sac parcel is offered with full architectural estate plans, allowing the buyer to build a residence of exceptional scale and elegance featuring grand entertaining rooms, first-floor guest suite, home office/library, sunroom, four-car garage, and a private primary suite wing with sitting room, terrace, and dual dressing rooms.
Buyer has the flexibility to choose finishes, including kitchen style, cabinetry, flooring, millwork, tile, fixtures, and color palette. Select your appliances, lighting, and interior design direction to match traditional, transitional, or modern taste as well as Exterior Landscape design.
A geotechnical evaluation has been completed, confirming no groundwater and suitability for a reinforced gunite pool, and Cabana streamlining the construction and approval process. Located in the Jericho School District, close to Brookville and Engineers Country Clubs, LIU Post, private academies, and major commuter routes.
Build a home that reflects your lifestyle and vision.
Full plan set and private appointment is available.
Utilities are not in place at the time of this listing. Plans are in place, Option to meet builder and make plan changes..
*Owner has collaborated with Home Interior Designer - Home Interiors by Anthony Jiaramita. © 2025 OneKey™ MLS, LLC







