| ID # | RLS20056680 |
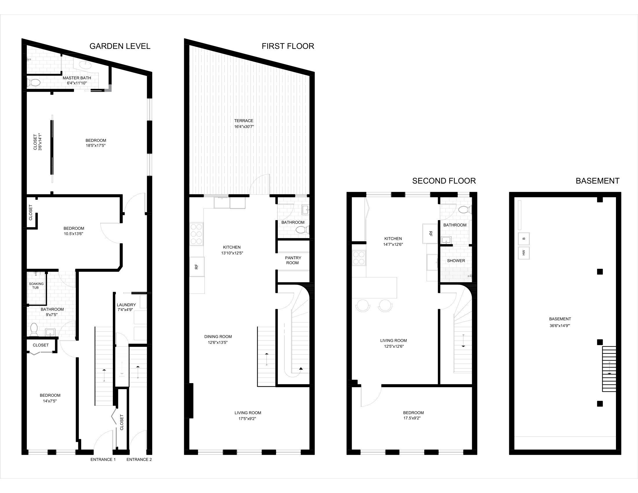
| Özellikler | 2 fam, 4 yatak odası, 3 banyo, 1 yarım banyo, iç mekan: 2601 ft2, 242m2, Binada 2 ünite var, 3 katlı bina |
| İnşaat yılı | 1931 |
| Yıllık vergiler | $6,000 |
| Otobüs | 1 dakika: B61 |
| 10 dakika: B57 | |
| Tren (LIRR) | 1.6 mil: "Atlantic Terminal" |
| 3 mil: "Nostrand Avenue" | |
![]() |
Hoş geldiniz 10 Carroll Street'e — esneklik, güzellik ve fırsat sunan bir Brooklyn mücevheri. Asla inşa edilemeyecek sakin, açık bir bahçenin hemen arkasında yer alan bu yeni yenilenmiş mülk, şehirde nadiren bulunan bol miktarda doğal ışık ve mahremiyet sunmaktadır. Her detay titizlikle yenilenmiş, modern dokunuşlar ve klasik Brooklyn cazibesiyle birleştirilmiştir.
Şu anda iki ailelik bir konut olarak yapılandırılmış ve kullanılan bina, karışık kullanım imar durumu sayesinde çeşitli olanaklara kapı açmaktadır — ister bir yaşam/çalışma ayarı, ister yaratıcı bir stüdyo alanı, ya da gelir potansiyeli olan akıllı bir yatırım mülkü arıyor olun. Engellenmemiş bahçe manzaraları, esnek düzeni ve anahtar teslim yenilemesi ile 10 Carroll Street, dükkanlara, yeme-içme mekanlarına ve ulaşım olanaklarına yakın, benzersiz bir fırsattır. Geniş üç yatak odalı bir duplex ile tam kat bir yatak odalı kiralık daire sunan bu güzelce yenilenmiş iki ailelik townhouse'a hoş geldiniz. 2025'te güncellenmiş olan bu ev, modern lüks ile akıllı bir yatırım fırsatını mükemmel bir şekilde birleştiriyor.
Ana Duplex Konut
Üst duplex gerçek bir göz alıcıdır. Uzman bir şef için tasarlanmış mutfak alanı şu özellikleri taşımaktadır:
Özel dolaplar
Mermer tezgahlar
48" Wolf ocak ve tencere suyu
Tarım çeşmesi
Şarap buzdolabı
Paslanmaz çelik aletler
Yürüyüş dolabı
Yüksek tavanlar ve bol doğal ışık
Açık konsept oturma ve yemek alanı, özel bir teras üzerine kesintisiz olarak akmaktadır — dış mekan mutfağı için donatılmış — topluluk bahçesinin engellenmemiş manzaraları ile eğlence için mükemmel bir alan sunmaktadır. Ana katı tamamlayan şık bir tuvalet bulunmaktadır. Aşağıda, çoklu püskürtmeli Grohe armatürleri, çift lavabo, makyaj masası ve cömert dolap alanı içeren spa havasında bir en-suite banyoya sahip huzurlu bir ana süit keşfedin. İki ek yatak odası, granit bir küvetli güzel bir duş ile paylaşılan bir banyo bulunmaktadır. Ek özellikler arasında:
Tüm alanlarda ısıtmalı zeminler
Bodrum katı erişimi ile yer içinde çamaşır yıkama
Split sistem merkezi klima
Tüm alanlarda güzel ahşap zemin
Esnek yaşam veya gelir potansiyeli
Üst kat bir yatak odalı daire olağanüstü esneklik sunmaktadır — Manhattan manzaraları, kiralık gelir elde etme, geniş aile veya misafir ağırlama veya evi geniş bir tek ailelik konut haline dönüştürme açısından idealdir.
Öncelikli Columbia Su Kenarı Lokasyonu
Brooklyn'in en çok talep gören semtlerinden birinde bulunan bu konum, şunlara sadece birkaç adım uzaklıktadır:
Yemek: Café Spaghetti, Red Hook Tavern, Lucali’s, Swoony’s ve daha fazlası
Rekreasyon: Brooklyn Köprüsü Parkı, Red Hook Feribotu ve yerel parklar
Ulaşım: F/G trenleri, sadece 10 dakikalık yürüme mesafesinde
Lütfen Dikkat:
Bu mülk şu anda iki ailelik bir konut olarak yapılandırılmış ve vergilendirilmiştir. Daha önce birinci katta ticari bir birim ve üstünde iki daire bulunan karışık kullanım mülkü olarak yapılandırılmıştır. Birinci katta dosyalanmamış bir ek bulunmaktadır. Mülk "olduğu gibi" satılmaktadır. Daha fazla bilgi için emlak danışmanı ile iletişime geçin.
Welcome to 10 Carroll Street — a Brooklyn gem offering flexibility, beauty, and opportunity.
Set just behind a tranquil, open garden that can never be built on, this newly renovated property enjoys an abundance of natural light and privacy rarely found in the city. Every detail has been thoughtfully refreshed, blending modern finishes with classic Brooklyn charm.
Currently configured and used as a two-family residence, the building’s mixed-use zoning opens the door to a variety of possibilities — whether you’re looking for a live/work setup, a creative studio space, or a smart investment property with income potential.
The unobstructed garden views, flexible layout, and turnkey renovation make 10 Carroll Street a one-of-a-kind opportunity in a prime Brooklyn location close to shops, dining, and transportation.Welcome to this beautifully renovated two-family townhouse, offering a spacious three-bedroom duplex plus a full-floor one-bedroom rental apartment. Updated in 2025, this home perfectly blends modern luxury with a smart investment opportunity.
Main Duplex Residence
The upper duplex is a true showstopper. A chef’s kitchen anchors the space, featuring:
Custom cabinetry
Marble countertops
48” Wolf range with pot filler
Farm sink
Wine fridge
Stainless steel appliances
Walk-in pantry
High ceilings and abundant natural light
The open-concept living and dining area seamlessly flows onto a private terrace—outfitted for an outdoor kitchen—perfect for entertaining with unobstructed views of the community garden. A stylish powder room completes the main level.
Downstairs, discover a serene primary suite with a spa-inspired en-suite bathroom featuring multi-spray Grohe fixtures, double sinks, a makeup vanity, and generous closet space. Two additional bedrooms share a beautifully appointed full bath with a granite soaking tub.
Additional highlights include:
Radiant heated floors throughout
In-unit laundry with basement access
Split-system central A/C
Beautiful wood flooring throughout
Flexible Living or Income Potential
The top-floor one-bedroom apartment offers exceptional versatility—Manhattan views, ideal for generating rental income, hosting extended family or guests, or converting the home into a spacious single-family residence.
Prime Columbia Waterfront Location
Located in one of Brooklyn’s most sought-after neighborhoods, you’re just moments from:
Dining: Café Spaghetti, Red Hook Tavern, Lucali’s, Swoony’s & more
Recreation: Brooklyn Bridge Park, Red Hook Ferry, and local parks
Transit: F/G trains, just a 10-minute walk away
Please Note:
This property is currently configured and taxed as a two-family dwelling. It was formerly configured as a mixed-use property with a commercial unit on the first floor and two apartments above. There is an unfiled extension on the first floor. The property is being sold “as is.” Contact listing agent for more details.
This information is not verified for authenticity or accuracy and is not guaranteed and may not reflect all real estate activity in the market. ©2025 The Real Estate Board of New York, Inc., All rights reserved.







