| MLS # | 926239 |
| Özellikler | 2 fam, Arsa büyüklüğü: 0.05 dönüm, Binada 2 ünite var |
| İnşaat yılı | 1920 |
| Yıllık vergiler | $6,387 |
| Yakıt türü | Gaz |
| Bodrum kat | Tam Bodrum |
| Otobüs | 2 dakika: Q66 |
| 4 dakika: Q18 | |
| 9 dakika: Q104, Q47, QM3 | |
| Subway | 5 min: M, R |
| Tren (LIRR) | 0.6 mil: "Woodside" |
| 2.5 mil: "Hunterspoint Avenue" | |
![]() |
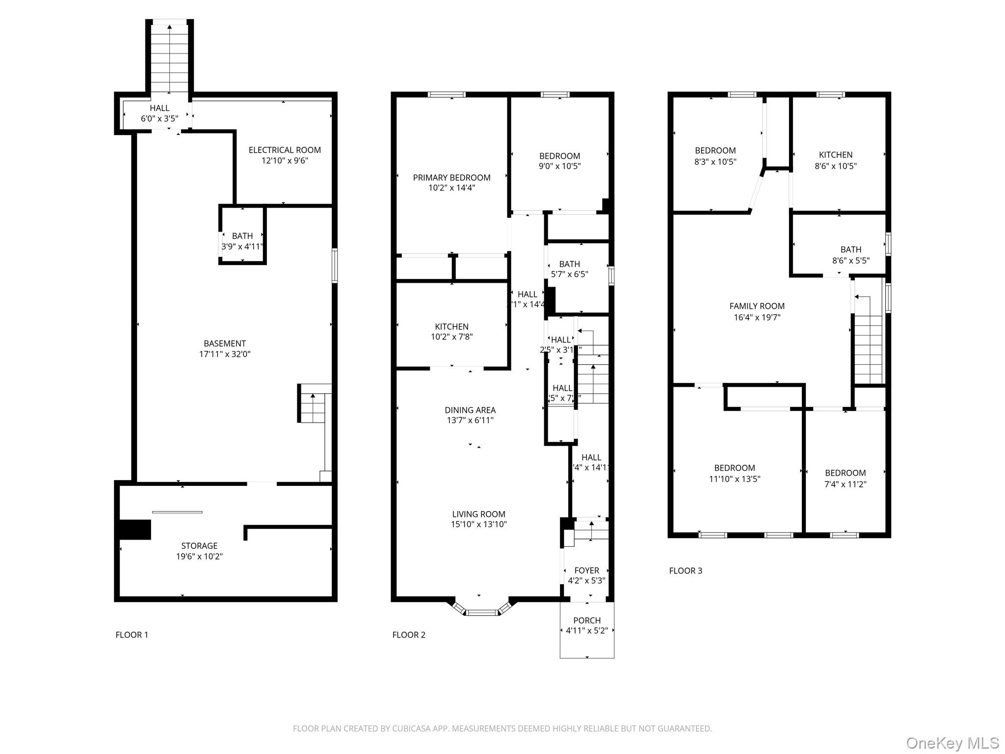
Bu aydınlık ve ferah yasal 2 ailelik daireyi sahiplenmek için harika bir fırsat. Mülk çok iyi bir şekilde bakımı yapılmış ve son zamanlarda birçok yenilik geçirmiştir. Hem birincil konut hem de yatırım fırsatı için mükemmel. Alışveriş, okullar ve restoranlara yakın. R/M metro hatlarına yakın, Midtown Manhattan'a 20 dakika. Q18 ve Q66 otobüsleri. Brooklyn Queens Expressway ve Grand Central Pkwy gibi ana yollara kolay erişim, ayrıca Manhattan'a sadece 20 dakika!
Great opportunity to own this bright and airy legal 2 Family with large backyard. Property has been very-well maintained and also has recently received many upgrades. Perfect for prime residence or investment opportunity. Convenient to shopping, schools, and restaurants. Close to R/M subways, 20 minutes to midtown Manhattan. Q18 & Q66 busses. Easy access to major highways: Brooklyn Queens Expressway and Grand Central Pkwy, and only 20 minutes to Manhattan! © 2025 OneKey™ MLS, LLC







