| ID # | RLS20048277 |
| Özellikler | 2 yatak odası, 1 banyo, Binada 90 ünite var, 6 katlı bina |
| İnşaat yılı | 1928 |
| Bakım ücretleri | $1,399 |
![]() |
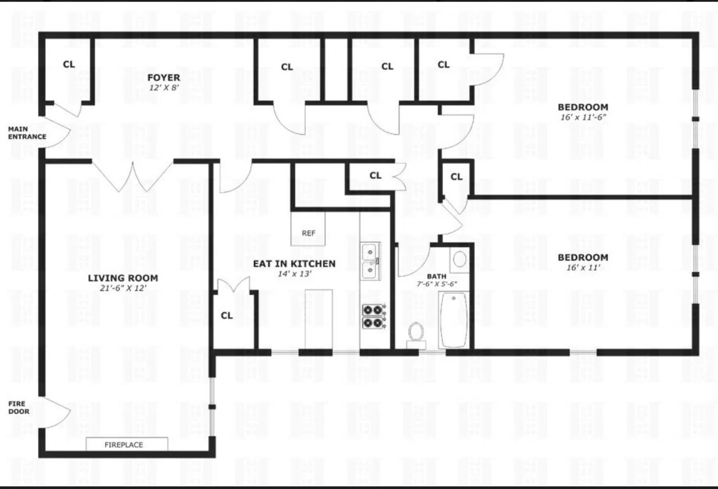
1075 Grand Concourse 5P'ye hoş geldiniz, Bronx, NY'nin kalbinde yer alan sevimli bir konut. Bu ev, her biri tarihi Andrew Freedman Bahçeleri'nin huzurlu manzaralarını sunan iki geniş yatak odasına sahiptir. Orijinal ahşap zeminler şıklık katarken, bol miktarda dolap alanı depolama ihtiyaçlarınızı karşılar.
Apartmanın içindeki grande profilleri ve yüksek tavan yüksekliği.
Büyüklüğü ile dikkat çeken pencereler, bolca doğal ışık alarak evi aydınlatır ve aşağıdaki şirin taş kaldırımlı sokağın manzarasını sunar.
Fonksiyonellik ve konfor için tasarlanmış pencereli yemekli mutfak, paslanmaz çelik aletler ve samimi bir yemek alanı ile donatılmıştır.
5. katta yer alan bu ev, yükseltilmiş bir yaşam deneyimi sunmaktadır. Sokağın karşısında, şu anda genişleyen kültürel bir merkez olan Bronx Müzesi'ni bulacaksınız.
Zamansız cazibeyi modern olanaklarla birleştiren bir evde yaşama fırsatını değerlendirin.
Paket odası, çamaşırhane, daimi yönetici, portörler ve anahtarsız görüntülü interkom sistemi.
Bu sadece bir mülk değil, bir yaşam tarzıdır. Hoş geldiniz, evcil hayvanlara izin verilmektedir.
Yankee Stadyumu, alışveriş için Gateway Alışveriş Merkezi (Lidl ve Target dahil), sayısız restoran.
Metro North Hudson ve CT hatları, ana karayolları, otobüsler, D/B/4/5/2 trenleri.
Welcome to 1075 Grand Concourse 5P, a charming residence nestled in the heart of Bronx, NY. This home boasts two spacious bedrooms, each offering serene views of the historic Andrew Freedman Gardens. Original hardwood floors add a touch of elegance, while the ample closet spaces cater to your storage needs.
Grande moldings inside apartment and tall ceiling height.
Extra-large windows invite an abundance of natural light, illuminating the home and offering views of the quaint cobblestone street below.
The windowed eat in kitchen, designed for both functionality and comfort, features stainless steel appliances and a cozy dining area.
Situated on the 5th floor, this home provides an elevated living experience. Just across the street, you'll find the Bronx Museum, a cultural hub that's currently expanding.
Embrace the opportunity to reside in a home that combines timeless charm with modern amenities.
Package room , laundry , live in Super , porters and keyless intercom system.
This is not just a property, it's a lifestyle. Welcome home ,pets are allowed .
Yankee Stadium ,Gateway Mall with Shopping ( including Lidl & Target ) ,numerous restaurants .
Metro North Hudson and CT lines ,major highways ,buses ,D/B/4/5/2 trains .
This information is not verified for authenticity or accuracy and is not guaranteed and may not reflect all real estate activity in the market. ©2025 The Real Estate Board of New York, Inc., All rights reserved.







